物件番号:819185
東洋須田町ビル
4階
千代田区でオフィス移転を検討中の企業様へ。Stratectが居抜き・セットアップなど豊富な物件から最適なオフィスをご提案。物件探しから移転まで一括サポートします。
Swipe
月額合計
相談
賃料
相談
共益費
相談
面積
30.77坪
(101.72㎡)
(101.72㎡)
入居日
即
この物件について
お問い合わせする
お問い合わせする
お電話でのご相談も
承ります
承ります
東京
03-6260-7395
営業時間 平日9:00~18:00
所在地・アクセス
所在地
東京都千代田区神田須田町1-5
エリア
秋葉原・神田・岩本町、 神保町・小川町・竹橋
最寄駅
東京メトロ銀座線 神田駅 徒歩1分
東京メトロ丸ノ内線 淡路町駅 徒歩3分
都営新宿線 小川町駅 徒歩3分
JR山手線 神田駅 徒歩5分
東京メトロ丸ノ内線 淡路町駅 徒歩3分
都営新宿線 小川町駅 徒歩3分
JR山手線 神田駅 徒歩5分
賃貸条件
賃料(坪単価)
相談
礼金
-
共益費(坪単価)
相談
償却
-
月額合計(坪単価)
相談
面積
30.77坪
(101.72㎡)
(101.72㎡)
敷金・保証金
相談
入居日
即
更新料
-
契約形態
定期借家契約
建物詳細
構造
鉄骨造
土日エントランス
オープン
オープン
-
規模
地上0階
天井高
2,800mm以上
2,800mm以上
-
竣工
1997年08月
駐車場
-
設備
こだわり設備
個別空調
男女トイレ別
OAフロア
新耐震基準
その他の設備
エレベーター
物件詳細
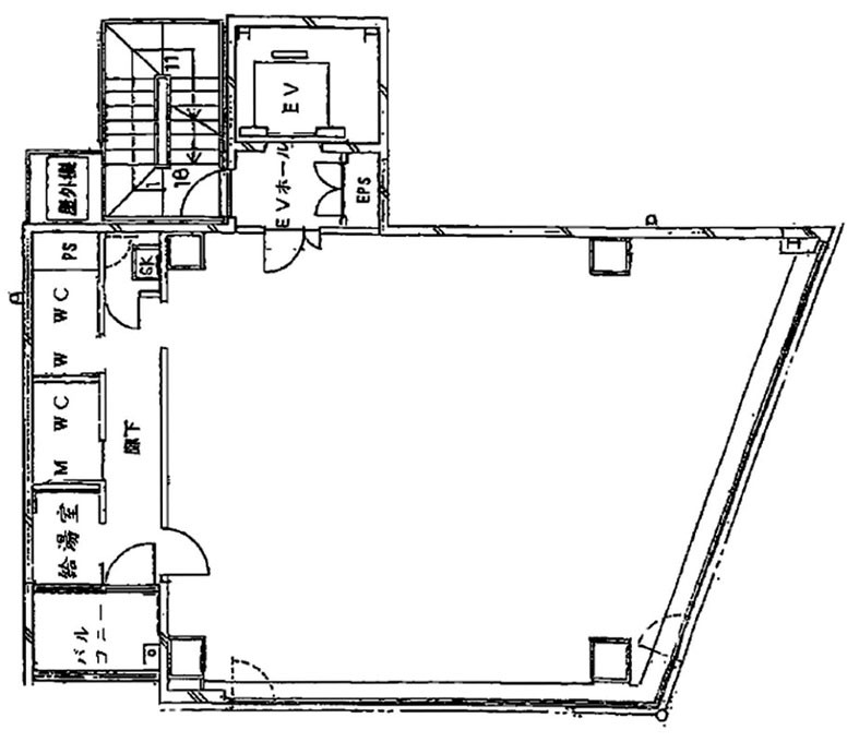
間取り図
contact
この物件について問い合わせる
お電話でのご相談も承ります
東京
03-6260-7395
営業時間 平日9:00~18:00
現在募集中のその他の区画
(募集中の総面積:30.77坪 / 101.72㎡)
※チェックボックスにチェックを入れると、複数の物件について一度にお問合せできます。
メールでのお問い合わせはこちら
お電話でのご相談も承ります
Neighborhood
条件の似ている物件
Recommend
同じエリアの人気物件
この物件について詳しく知りたい方は