Swipe
月額合計
659,260円(@14,000円)
【税込:725,186円】
【税込:725,186円】
賃料
517,990円(@11,000円)
【税込:569,789円】
【税込:569,789円】
共益費
141,270円(@3,000円)
【税込:155,397円】
【税込:155,397円】
面積
47.09坪
(155.67㎡)
(155.67㎡)
入居日
即
この物件について
お問い合わせする
お問い合わせする
お電話でのご相談も
承ります
承ります
東京
03-6260-7395
営業時間 平日9:00~18:00
所在地・アクセス
所在地
東京都千代田区飯田橋4-9-5
エリア
神保町・小川町・竹橋
最寄駅
東京メトロ東西線 飯田橋駅 徒歩1分
東京メトロ有楽町線 飯田橋駅 徒歩1分
JR中央・総武線 飯田橋駅 徒歩1分
東京メトロ有楽町線 飯田橋駅 徒歩1分
JR中央・総武線 飯田橋駅 徒歩1分
賃貸条件
賃料(坪単価)
517,990円(@11,000円)
【税込:569,789円】
【税込:569,789円】
礼金
-
共益費(坪単価)
141,270円(@3,000円)
【税込:155,397円】
【税込:155,397円】
償却
1ヶ月
月額合計(坪単価)
659,260円(@14,000円)
【税込:725,186円】
【税込:725,186円】
面積
47.09坪
(155.67㎡)
(155.67㎡)
敷金・保証金
8ヶ月
入居日
即
更新料
-
契約形態
普通賃貸借契約
建物詳細
構造
RC
土日エントランス
オープン
オープン
-
規模
地上0階
天井高
2,800mm以上
2,800mm以上
-
竣工
1987年02月
駐車場
-
設備
こだわり設備
個別空調
男女トイレ別
OAフロア
新耐震基準
その他の設備
エレベーター
1フロア
物件詳細
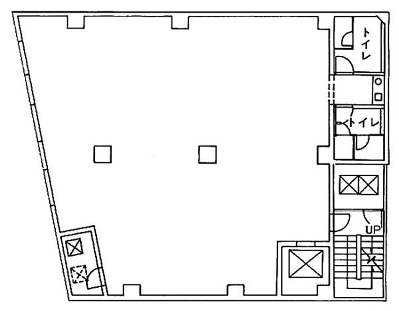
間取り図
contact
この物件について問い合わせる
お電話でのご相談も承ります
東京
03-6260-7395
営業時間 平日9:00~18:00
現在募集中のその他の区画
(募集中の総面積:47.09坪 / 155.67㎡)
※チェックボックスにチェックを入れると、複数の物件について一度にお問合せできます。
メールでのお問い合わせはこちら
お電話でのご相談も承ります
Neighborhood
条件の似ている物件
Recommend
同じエリアの人気物件
この物件について詳しく知りたい方は