Swipe
月額合計
984,810円(@17,000円)
【税込:1,083,291円】
【税込:1,083,291円】
賃料
984,810円(@17,000円)
【税込:1,083,291円】
【税込:1,083,291円】
共益費
込
面積
57.93坪
(191.50㎡)
(191.50㎡)
入居日
2026/08/01
この物件について
お問い合わせする
お問い合わせする
お電話でのご相談も
承ります
承ります
東京
03-6260-7395
営業時間 平日9:00~18:00
所在地・アクセス
所在地
東京都千代田区飯田橋2-14-2
エリア
神保町・小川町・竹橋
最寄駅
東京メトロ東西線 九段下駅 徒歩3分
東京メトロ半蔵門線 九段下駅 徒歩5分
JR中央・総武線 飯田橋駅 徒歩10分
東京メトロ半蔵門線 九段下駅 徒歩5分
JR中央・総武線 飯田橋駅 徒歩10分
賃貸条件
賃料(坪単価)
984,810円(@17,000円)
【税込:1,083,291円】
【税込:1,083,291円】
礼金
1ヶ月
共益費(坪単価)
込
償却
-
月額合計(坪単価)
984,810円(@17,000円)
【税込:1,083,291円】
【税込:1,083,291円】
面積
57.93坪
(191.50㎡)
(191.50㎡)
敷金・保証金
12ヶ月
入居日
2026/08/01
更新料
-
契約形態
普通賃貸借契約
建物詳細
構造
RC
土日エントランス
オープン
オープン
-
規模
地上5階
天井高
2,800mm以上
2,800mm以上
-
竣工
1993年02月
駐車場
-
設備
こだわり設備
個別空調
OAフロア
新耐震基準
その他の設備
エレベーター
1フロア
物件詳細
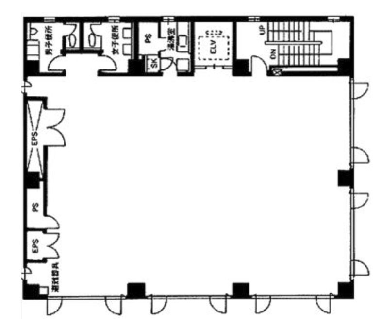
間取り図
contact
この物件について問い合わせる
お電話でのご相談も承ります
東京
03-6260-7395
営業時間 平日9:00~18:00
現在募集中のその他の区画
(募集中の総面積:57.93坪 / 191.50㎡)
※チェックボックスにチェックを入れると、複数の物件について一度にお問合せできます。
メールでのお問い合わせはこちら
お電話でのご相談も承ります
Neighborhood
条件の似ている物件
Recommend
同じエリアの人気物件
この物件について詳しく知りたい方は