Swipe
月額合計
283,650円(@13,637円)
【税込:312,015円】
【税込:312,015円】
賃料
249,600円(@12,000円)
【税込:274,560円】
【税込:274,560円】
共益費
34,050円(@1,637円)
【税込:37,455円】
【税込:37,455円】
面積
20.80坪
(68.76㎡)
(68.76㎡)
入居日
即
この物件について
お問い合わせする
お問い合わせする
お電話でのご相談も
承ります
承ります
東京
03-6260-7395
営業時間 平日9:00~18:00
所在地・アクセス
所在地
東京都港区芝大門1-5-2
エリア
浜松町・芝公園・田町・三田
最寄駅
都営浅草線 大門駅 徒歩3分
都営三田線 御成門駅 徒歩4分
JR山手線 浜松町駅 徒歩4分
JR京浜東北線 浜松町駅 徒歩4分
都営三田線 御成門駅 徒歩4分
JR山手線 浜松町駅 徒歩4分
JR京浜東北線 浜松町駅 徒歩4分
賃貸条件
賃料(坪単価)
249,600円(@12,000円)
【税込:274,560円】
【税込:274,560円】
礼金
-
共益費(坪単価)
34,050円(@1,637円)
【税込:37,455円】
【税込:37,455円】
償却
1ヶ月
月額合計(坪単価)
283,650円(@13,637円)
【税込:312,015円】
【税込:312,015円】
面積
20.80坪
(68.76㎡)
(68.76㎡)
敷金・保証金
6ヶ月
入居日
即
更新料
1ヶ月
契約形態
普通賃貸借契約
建物詳細
構造
SRC
土日エントランス
オープン
オープン
-
規模
地上7階
天井高
2,800mm以上
2,800mm以上
-
竣工
1984年
駐車場
-
設備
こだわり設備
個別空調
新耐震基準
その他の設備
エレベーター
スタッフコメント
企業の成長を見据えたオフィス選びをサポート。レイアウトや条件交渉、入居後の運用まで見据えたご提案が可能です。まずはお気軽に条件相談・内見依頼ください。
物件詳細
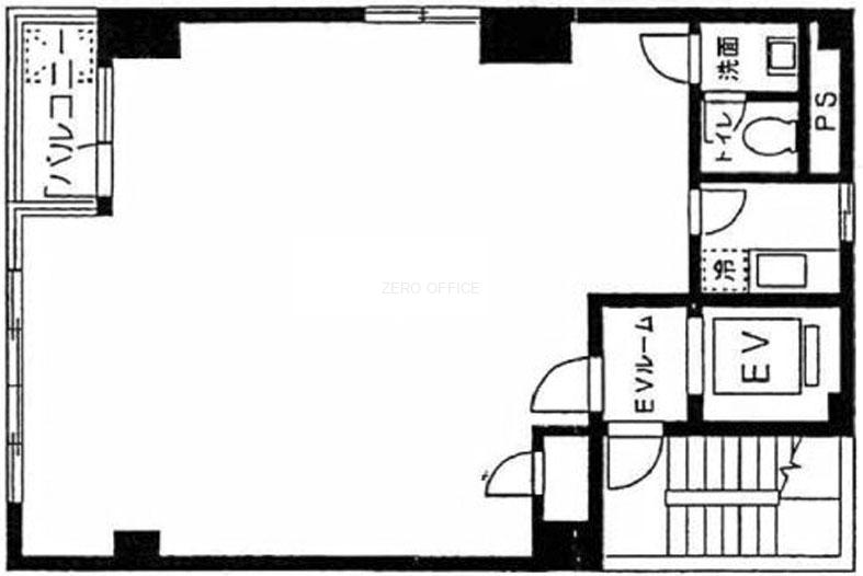
間取り図
contact
この物件について問い合わせる
お電話でのご相談も承ります
東京
03-6260-7395
営業時間 平日9:00~18:00
現在募集中のその他の区画
(募集中の総面積:43.50坪 / 143.80㎡)
※チェックボックスにチェックを入れると、複数の物件について一度にお問合せできます。
メールでのお問い合わせはこちら
お電話でのご相談も承ります
Neighborhood
条件の似ている物件
Recommend
同じエリアの人気物件
この物件について詳しく知りたい方は