物件番号:143692
住友不動産芝ビル4号館
10階
港区でオフィスをお探しの方へ。赤坂・虎ノ門・六本木など人気ビジネスエリアの物件情報を豊富にご用意。ご要望に合う最適なオフィス探しをサポートします。
Swipe
月額合計
相談
賃料
相談
共益費
相談
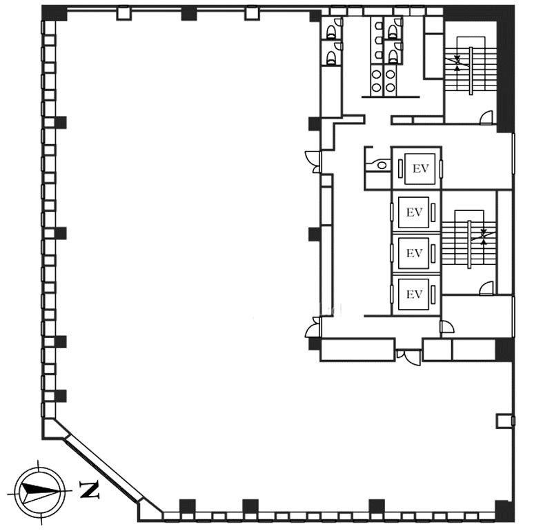
面積
144.35坪
(477.19㎡)
(477.19㎡)
入居日
即
この物件について
お問い合わせする
お問い合わせする
お電話でのご相談も
承ります
承ります
東京
03-6260-7395
営業時間 平日9:00~18:00
所在地・アクセス
所在地
東京都港区芝2-13-4
エリア
浜松町・芝公園・田町・三田
最寄駅
都営浅草線 大門駅 徒歩8分
都営三田線 芝公園駅 徒歩5分
JR山手線 浜松町駅 徒歩7分
都営三田線 芝公園駅 徒歩5分
JR山手線 浜松町駅 徒歩7分
賃貸条件
賃料(坪単価)
相談
礼金
-
共益費(坪単価)
相談
償却
-
月額合計(坪単価)
相談
面積
144.35坪
(477.19㎡)
(477.19㎡)
敷金・保証金
相談
入居日
即
更新料
-
契約形態
普通賃貸借契約
建物詳細
構造
その他
土日エントランス
オープン
オープン
-
規模
地上15階地下2階
天井高
2,800mm以上
2,800mm以上
-
竣工
1990年10月
駐車場
-
設備
こだわり設備
個別空調
男女トイレ別
OAフロア
新耐震基準
エレベーター2基以上
その他の設備
大通り沿い
エレベーター
スタッフコメント
企業の成長を見据えたオフィス選びをサポート。レイアウトや条件交渉、入居後の運用まで見据えたご提案が可能です。まずはお気軽に条件相談・内見依頼ください。
物件詳細
間取り図
contact
この物件について問い合わせる
お電話でのご相談も承ります
東京
03-6260-7395
営業時間 平日9:00~18:00
現在募集中のその他の区画
(募集中の総面積:144.35坪 / 477.19㎡)
※チェックボックスにチェックを入れると、複数の物件について一度にお問合せできます。
メールでのお問い合わせはこちら
お電話でのご相談も承ります
Neighborhood
条件の似ている物件
Recommend
同じエリアの人気物件
この物件について詳しく知りたい方は