物件番号:131887
芝浦スクエアビル
4階
港区でオフィス移転をご検討の企業様へ。居抜きオフィス・セットアップオフィスなど最新の空室情報からご要望に合うオフィスをご提案。Stratectが移転をサポートします。
Swipe
月額合計
相談
賃料
相談
共益費
込
面積
205.59坪
(679.64㎡)
(679.64㎡)
入居日
即
この物件について
お問い合わせする
お問い合わせする
お電話でのご相談も
承ります
承ります
東京
03-6260-7395
営業時間 平日9:00~18:00
所在地・アクセス
所在地
東京都港区芝浦4-9-25
エリア
お台場・芝浦、 浜松町・芝公園・田町・三田
最寄駅
JR山手線 田町駅 徒歩10分
都営三田線 三田駅 徒歩10分
都営浅草線 三田駅 徒歩10分
都営三田線 三田駅 徒歩10分
都営浅草線 三田駅 徒歩10分
賃貸条件
賃料(坪単価)
相談
礼金
-
共益費(坪単価)
込
償却
-
月額合計(坪単価)
相談
面積
205.59坪
(679.64㎡)
(679.64㎡)
敷金・保証金
相談
入居日
即
更新料
-
契約形態
普通賃貸借契約
建物詳細
構造
鉄骨造
土日エントランス
オープン
オープン
-
規模
地上21階地下3階
天井高
2,800mm以上
2,800mm以上
-
竣工
1989年
駐車場
-
設備
こだわり設備
男女トイレ別
OAフロア
新耐震基準
エレベーター2基以上
大型ビル分割
その他の設備
セントラル空調
エレベーター
大型・高層
ランドマーク
スタッフコメント
オフィス移転や開設をご検討の企業様におすすめの物件です。条件の相談やフリーレントのご相談、内見依頼などお気軽にお問い合わせください。
物件詳細
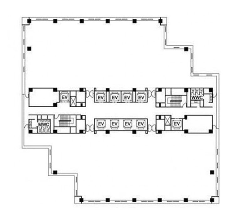
間取り図
contact
この物件について問い合わせる
お電話でのご相談も承ります
東京
03-6260-7395
営業時間 平日9:00~18:00
現在募集中のその他の区画
(募集中の総面積:343.90坪 / 1,136.86㎡)
※チェックボックスにチェックを入れると、複数の物件について一度にお問合せできます。
メールでのお問い合わせはこちら
お電話でのご相談も承ります
Neighborhood
条件の似ている物件
Recommend
同じエリアの人気物件
この物件について詳しく知りたい方は