物件番号:143529
機械振興会館
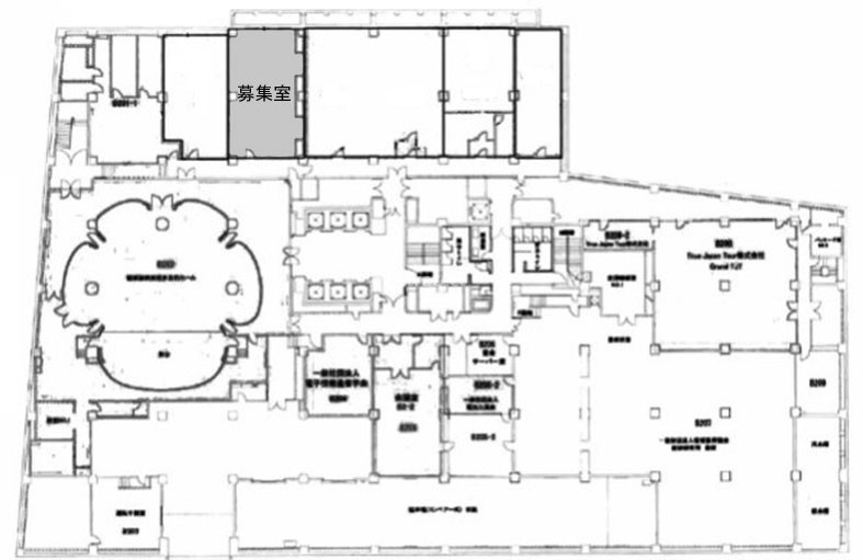
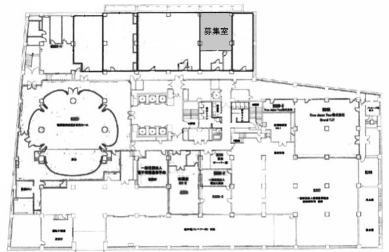
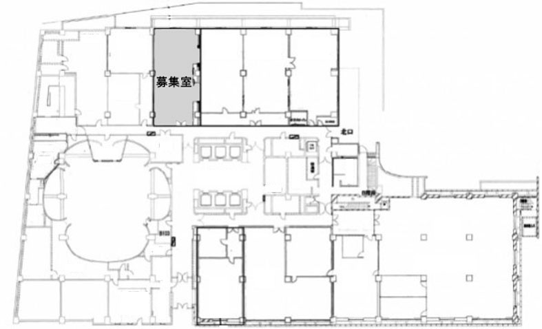
地下2階 201-6
港区でオフィスをお探しの方へ。新橋・浜松町・虎ノ門など人気ビジネスエリアの物件情報を豊富にご用意。ご要望に合う最適なオフィスをご提案します。
Swipe
月額合計
516,900円(@17,900円)
【税込:568,590円】
【税込:568,590円】
賃料
433,200円(@15,000円)
【税込:476,520円】
【税込:476,520円】
共益費
83,700円(@2,900円)
【税込:92,070円】
【税込:92,070円】
面積
28.88坪
(95.47㎡)
(95.47㎡)
入居日
即
この物件について
お問い合わせする
お問い合わせする
お電話でのご相談も
承ります
承ります
東京
03-6260-7395
営業時間 平日9:00~18:00
所在地・アクセス
所在地
東京都港区芝公園3-5-8
エリア
浜松町・芝公園・田町・三田
最寄駅
東京メトロ日比谷線 神谷町駅 徒歩8分
都営三田線 御成門駅 徒歩8分
JR山手線 浜松町駅 徒歩15分
都営三田線 御成門駅 徒歩8分
JR山手線 浜松町駅 徒歩15分
賃貸条件
賃料(坪単価)
433,200円(@15,000円)
【税込:476,520円】
【税込:476,520円】
礼金
-
共益費(坪単価)
83,700円(@2,900円)
【税込:92,070円】
【税込:92,070円】
償却
-
月額合計(坪単価)
516,900円(@17,900円)
【税込:568,590円】
【税込:568,590円】
面積
28.88坪
(95.47㎡)
(95.47㎡)
敷金・保証金
6ヶ月
入居日
即
更新料
0ヶ月
契約形態
定期借家契約
建物詳細
構造
RC
土日エントランス
オープン
オープン
-
規模
地上6階地下4階
天井高
2,800mm以上
2,800mm以上
-
竣工
1966年09月
駐車場
-
設備
こだわり設備
個別空調
男女トイレ別
OAフロア
エレベーター2基以上
その他の設備
エレベーター
スタッフコメント
企業の成長を見据えたオフィス選びをサポート。レイアウトや条件交渉、入居後の運用まで見据えたご提案が可能です。まずはお気軽に条件相談・内見依頼ください。
物件詳細
間取り図
contact
この物件について問い合わせる
お電話でのご相談も承ります
東京
03-6260-7395
営業時間 平日9:00~18:00
現在募集中のその他の区画
(募集中の総面積:316.29坪 / 1,045.59㎡)
※チェックボックスにチェックを入れると、複数の物件について一度にお問合せできます。
メールでのお問い合わせはこちら
お電話でのご相談も承ります
Neighborhood
条件の似ている物件
Recommend
同じエリアの人気物件
この物件について詳しく知りたい方は