物件番号:730331
リアライズ梅田東ビル
3階
オフィス移転をご検討中の企業様へ。居抜き・セットアップなど最新の空室情報からご希望に合う物件をご紹介。Stratectが物件探しから移転までトータルサポートします。
Swipe
月額合計
968,182円(@22,733円)
【税込:1,065,000円】
【税込:1,065,000円】
賃料
968,182円(@22,733円)
【税込:1,065,000円】
【税込:1,065,000円】
共益費
込
面積
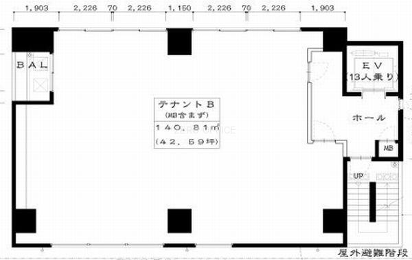
42.59坪
(140.79㎡)
(140.79㎡)
入居日
即
この物件について
お問い合わせする
お問い合わせする
お電話でのご相談も
承ります
承ります
大阪・兵庫
06-6131-7871
営業時間 平日9:00~18:00
所在地・アクセス
所在地
大阪府大阪市北区曾根崎1-2-16
エリア
堂島・中之島
最寄駅
大阪メトロ谷町線 東梅田駅 徒歩6分
大阪メトロ谷町線 南森町駅 徒歩12分
大阪メトロ御堂筋線 梅田駅 徒歩15分
JR京都線 大阪駅 徒歩15分
大阪メトロ谷町線 南森町駅 徒歩12分
大阪メトロ御堂筋線 梅田駅 徒歩15分
JR京都線 大阪駅 徒歩15分
賃貸条件
賃料(坪単価)
968,182円(@22,733円)
【税込:1,065,000円】
【税込:1,065,000円】
礼金
-
共益費(坪単価)
込
償却
-
月額合計(坪単価)
968,182円(@22,733円)
【税込:1,065,000円】
【税込:1,065,000円】
面積
42.59坪
(140.79㎡)
(140.79㎡)
敷金・保証金
相談
入居日
即
更新料
-
契約形態
普通賃貸借契約
建物詳細
構造
RC
土日エントランス
オープン
オープン
-
規模
地上10階
天井高
2,800mm以上
2,800mm以上
-
竣工
2025年03月
駐車場
-
設備
こだわり設備
個別空調
男女トイレ別
新耐震基準
その他の設備
大通り沿い
築浅(3年以内)
エレベーター
1階限定
スタッフコメント
周辺環境やアクセスの利便性も魅力のオフィスです。レイアウトの自由度もあり、様々な業種に対応可能。条件のご相談や内見のご希望など、お気軽にお問い合わせください。
物件詳細
間取り図
contact
この物件について問い合わせる
お電話でのご相談も承ります
大阪・兵庫
06-6131-7871
営業時間 平日9:00~18:00
現在募集中のその他の区画
(募集中の総面積:118.04坪 / 390.21㎡)
※チェックボックスにチェックを入れると、複数の物件について一度にお問合せできます。
メールでのお問い合わせはこちら
お電話でのご相談も承ります
Neighborhood
条件の似ている物件
Recommend
同じエリアの人気物件
この物件について詳しく知りたい方は