物件番号:702448
毎日インテシオビル
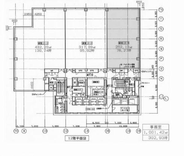
14階
オフィス移転・事務所移転のご相談はStratectへ。居抜きオフィスやセットアップオフィスなど豊富な物件情報から、ご要望に合うオフィスをご提案します。
Swipe
月額合計
相談
賃料
相談
共益費
588,330円(@4,500円)
【税込:647,163円】
【税込:647,163円】
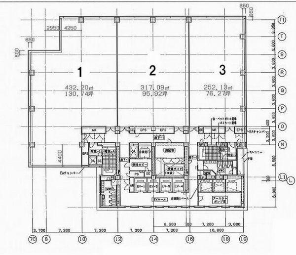
面積
130.74坪
(432.20㎡)
(432.20㎡)
入居日
即
この物件について
お問い合わせする
お問い合わせする
お電話でのご相談も
承ります
承ります
大阪・兵庫
06-6131-7871
営業時間 平日9:00~18:00
所在地・アクセス
所在地
大阪府大阪市北区梅田3-4-5
エリア
堂島・中之島
最寄駅
大阪メトロ四つ橋線 西梅田駅 徒歩6分
JR京都線 大阪駅 徒歩6分
阪急神戸本線 梅田駅 徒歩10分
大阪メトロ御堂筋線 梅田駅 徒歩10分
JR京都線 大阪駅 徒歩6分
阪急神戸本線 梅田駅 徒歩10分
大阪メトロ御堂筋線 梅田駅 徒歩10分
賃貸条件
賃料(坪単価)
相談
礼金
-
共益費(坪単価)
588,330円(@4,500円)
【税込:647,163円】
【税込:647,163円】
償却
-
月額合計(坪単価)
相談
面積
130.74坪
(432.20㎡)
(432.20㎡)
敷金・保証金
12ヶ月
入居日
即
更新料
-
契約形態
普通賃貸借契約
建物詳細
構造
SRC
土日エントランス
オープン
オープン
-
規模
地上21階
天井高
2,800mm以上
2,800mm以上
-
竣工
2007年07月
駐車場
○
設備
こだわり設備
個別空調
男女トイレ別
OAフロア
新耐震基準
エレベーター2基以上
その他の設備
大通り沿い
駐車場
エレベーター
大型・高層
ランドマーク
スタッフコメント
周辺環境やアクセスの利便性も魅力のオフィスです。レイアウトの自由度もあり、様々な業種に対応可能。条件のご相談や内見のご希望など、お気軽にお問い合わせください。
物件詳細
間取り図
contact
この物件について問い合わせる
お電話でのご相談も承ります
大阪・兵庫
06-6131-7871
営業時間 平日9:00~18:00
現在募集中のその他の区画
(募集中の総面積:231.26坪 / 764.50㎡)
※チェックボックスにチェックを入れると、複数の物件について一度にお問合せできます。
メールでのお問い合わせはこちら
お電話でのご相談も承ります
Neighborhood
条件の似ている物件
Recommend
同じエリアの人気物件
この物件について詳しく知りたい方は