物件番号:730000
UMEDA EAST CROSS
12階
オフィス移転をご検討中の企業様へ。居抜き・セットアップなど最新の空室情報からご希望に合う物件をご紹介。Stratectが物件探しから移転までトータルサポートします。
Swipe
月額合計
相談
賃料
相談
共益費
相談
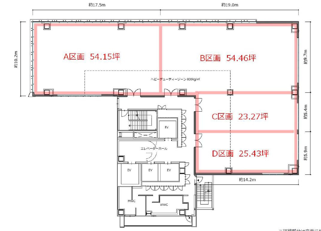
面積
159.32坪
(526.68㎡)
(526.68㎡)
入居日
即
この物件について
お問い合わせする
お問い合わせする
お電話でのご相談も
承ります
承ります
大阪・兵庫
06-6131-7871
営業時間 平日9:00~18:00
所在地・アクセス
所在地
大阪府大阪市北区堂山町111-1
エリア
堂島・中之島
最寄駅
大阪メトロ谷町線 東梅田駅 徒歩2分
大阪メトロ御堂筋線 梅田駅 徒歩2分
JR京都線 大阪駅 徒歩8分
大阪環状線 大阪駅 徒歩8分
大阪メトロ御堂筋線 梅田駅 徒歩2分
JR京都線 大阪駅 徒歩8分
大阪環状線 大阪駅 徒歩8分
賃貸条件
賃料(坪単価)
相談
礼金
-
共益費(坪単価)
相談
償却
-
月額合計(坪単価)
相談
面積
159.32坪
(526.68㎡)
(526.68㎡)
敷金・保証金
相談
入居日
即
更新料
-
契約形態
定期借家契約
建物詳細
構造
鉄骨造
土日エントランス
オープン
オープン
-
規模
地上14階
天井高
2,800mm以上
2,800mm以上
-
竣工
2025年09月
駐車場
-
設備
こだわり設備
個別空調
男女トイレ別
OAフロア
その他の設備
築浅(3年以内)
エレベーター
大型・高層
スタッフコメント
周辺環境やアクセスの利便性も魅力のオフィスです。レイアウトの自由度もあり、様々な業種に対応可能。条件のご相談や内見のご希望など、お気軽にお問い合わせください。
物件詳細
間取り図
contact
この物件について問い合わせる
お電話でのご相談も承ります
大阪・兵庫
06-6131-7871
営業時間 平日9:00~18:00
現在募集中のその他の区画
(募集中の総面積:477.97坪 / 1,580.08㎡)
※チェックボックスにチェックを入れると、複数の物件について一度にお問合せできます。
メールでのお問い合わせはこちら
お電話でのご相談も承ります
Neighborhood
条件の似ている物件
Recommend
同じエリアの人気物件
この物件について詳しく知りたい方は