物件番号:700761
関電不動産西梅田ビル
6階
オフィス移転・事務所移転のご相談はStratectへ。居抜きオフィスやセットアップオフィスなど豊富な物件情報から、ご要望に合うオフィスをご提案します。
Swipe
月額合計
相談
賃料
相談
共益費
相談
面積
28.05坪
(92.73㎡)
(92.73㎡)
入居日
2025/12
この物件について
お問い合わせする
お問い合わせする
お電話でのご相談も
承ります
承ります
大阪・兵庫
06-6131-7871
営業時間 平日9:00~18:00
所在地・アクセス
所在地
大阪府大阪市北区曽根崎新地2-2-16
エリア
堂島・中之島
最寄駅
JR東西線 北新地駅 徒歩1分
大阪メトロ四つ橋線 西梅田駅 徒歩1分
JR京都線 大阪駅 徒歩7分
大阪メトロ四つ橋線 西梅田駅 徒歩1分
JR京都線 大阪駅 徒歩7分
賃貸条件
賃料(坪単価)
相談
礼金
-
共益費(坪単価)
相談
償却
-
月額合計(坪単価)
相談
面積
28.05坪
(92.73㎡)
(92.73㎡)
敷金・保証金
12ヶ月
入居日
2025/12
更新料
-
契約形態
定期借家契約
建物詳細
構造
SRC
土日エントランス
オープン
オープン
-
規模
地上9階地下4階
天井高
2,800mm以上
2,800mm以上
-
竣工
1965年12月
駐車場
○
設備
こだわり設備
個別空調
男女トイレ別
新耐震基準
エレベーター2基以上
その他の設備
大通り沿い
駐車場
エレベーター
大型・高層
ランドマーク
スタッフコメント
周辺環境やアクセスの利便性も魅力のオフィスです。レイアウトの自由度もあり、様々な業種に対応可能。条件のご相談や内見のご希望など、お気軽にお問い合わせください。
物件詳細
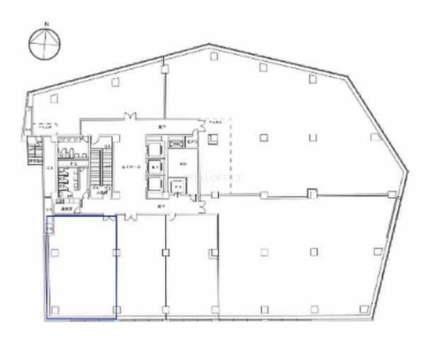
間取り図
contact
この物件について問い合わせる
お電話でのご相談も承ります
大阪・兵庫
06-6131-7871
営業時間 平日9:00~18:00
現在募集中のその他の区画
(募集中の総面積:178.24坪 / 589.23㎡)
※チェックボックスにチェックを入れると、複数の物件について一度にお問合せできます。
メールでのお問い合わせはこちら
お電話でのご相談も承ります
Neighborhood
条件の似ている物件
Recommend
同じエリアの人気物件
この物件について詳しく知りたい方は