Swipe
月額合計
相談
賃料
相談
共益費
相談
面積
60.75坪
(200.83㎡)
(200.83㎡)
入居日
2026/07/01
この物件について
お問い合わせする
お問い合わせする
お電話でのご相談も
承ります
承ります
東京
03-6260-7395
営業時間 平日9:00~18:00
所在地・アクセス
所在地
東京都千代田区外神田3-11-11
エリア
御茶ノ水・水道橋
最寄駅
東京メトロ銀座線 末広町駅 徒歩4分
JR山手線 秋葉原駅 徒歩5分
東京メトロ日比谷線 秋葉原駅 徒歩6分
つくばエクスプレス 秋葉原駅 徒歩7分
JR山手線 秋葉原駅 徒歩5分
東京メトロ日比谷線 秋葉原駅 徒歩6分
つくばエクスプレス 秋葉原駅 徒歩7分
賃貸条件
賃料(坪単価)
相談
礼金
1ヶ月
共益費(坪単価)
相談
償却
-
月額合計(坪単価)
相談
面積
60.75坪
(200.83㎡)
(200.83㎡)
敷金・保証金
5ヶ月
入居日
2026/07/01
更新料
1ヶ月
契約形態
普通賃貸借契約
建物詳細
構造
鉄骨造
土日エントランス
オープン
オープン
-
規模
地上10階
天井高
2,800mm以上
2,800mm以上
-
竣工
2022年06月
駐車場
-
設備
こだわり設備
個別空調
男女トイレ別
OAフロア
新耐震基準
その他の設備
初期費用重視
エレベーター
1フロア
物件詳細
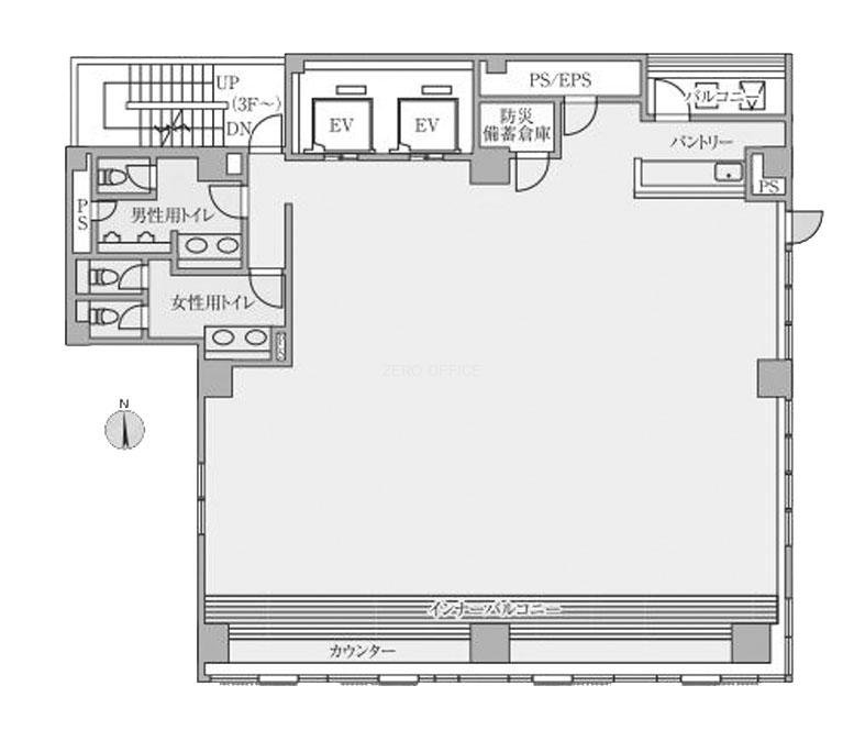
間取り図
contact
この物件について問い合わせる
お電話でのご相談も承ります
東京
03-6260-7395
営業時間 平日9:00~18:00
現在募集中のその他の区画
(募集中の総面積:60.75坪 / 200.83㎡)
※チェックボックスにチェックを入れると、複数の物件について一度にお問合せできます。
メールでのお問い合わせはこちら
お電話でのご相談も承ります
Neighborhood
条件の似ている物件
Recommend
同じエリアの人気物件
この物件について詳しく知りたい方は