物件番号:139417
The Corner SHINJUKU
4階
新宿区でオフィス移転を検討中の企業様へ。Stratectが居抜き・セットアップなど豊富な物件から最適なオフィスをご提案。物件探しから移転まで一括サポートします。
Swipe
月額合計
1,144,000円(@25,000円)
【税込:1,258,400円】
【税込:1,258,400円】
賃料
1,144,000円(@25,000円)
【税込:1,258,400円】
【税込:1,258,400円】
共益費
込
面積
45.76坪
(151.27㎡)
(151.27㎡)
入居日
相談
この物件について
お問い合わせする
お問い合わせする
お電話でのご相談も
承ります
承ります
東京
03-6260-7395
営業時間 平日9:00~18:00
所在地・アクセス
所在地
東京都新宿区新宿5-10-15
エリア
西新宿
最寄駅
東京メトロ丸ノ内線 新宿三丁目駅 徒歩5分
都営大江戸線 東新宿駅 徒歩6分
東京メトロ丸ノ内線 新宿御苑前駅 徒歩7分
JR山手線 新宿駅 徒歩10分
都営大江戸線 東新宿駅 徒歩6分
東京メトロ丸ノ内線 新宿御苑前駅 徒歩7分
JR山手線 新宿駅 徒歩10分
賃貸条件
賃料(坪単価)
1,144,000円(@25,000円)
【税込:1,258,400円】
【税込:1,258,400円】
礼金
-
共益費(坪単価)
込
償却
-
月額合計(坪単価)
1,144,000円(@25,000円)
【税込:1,258,400円】
【税込:1,258,400円】
面積
45.76坪
(151.27㎡)
(151.27㎡)
敷金・保証金
6ヶ月
入居日
相談
更新料
-
契約形態
普通賃貸借契約
建物詳細
構造
RC
土日エントランス
オープン
オープン
-
規模
地上7階
天井高
2,800mm以上
2,800mm以上
-
竣工
1984年06月
駐車場
-
設備
こだわり設備
新耐震基準
その他の設備
エレベーター
1フロア
スタッフコメント
企業の成長を見据えたオフィス選びをサポート。レイアウトや条件交渉、入居後の運用まで見据えたご提案が可能です。まずはお気軽に条件相談・内見依頼ください。
物件詳細
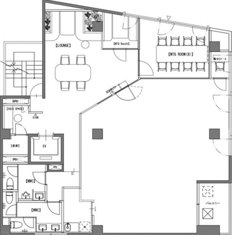
間取り図
contact
この物件について問い合わせる
お電話でのご相談も承ります
東京
03-6260-7395
営業時間 平日9:00~18:00
現在募集中のその他の区画
(募集中の総面積:45.76坪 / 151.27㎡)
※チェックボックスにチェックを入れると、複数の物件について一度にお問合せできます。
メールでのお問い合わせはこちら
お電話でのご相談も承ります
Neighborhood
条件の似ている物件
Recommend
同じエリアの人気物件
この物件について詳しく知りたい方は