物件番号:127341
新宿三井ビルディング
9階
新宿区でオフィス移転を検討中の企業様へ。Stratectが居抜き・セットアップなど豊富な物件から最適なオフィスをご提案。物件探しから移転まで一括サポートします。
Swipe
月額合計
相談
賃料
相談
共益費
込
面積
127.02坪
(419.90㎡)
(419.90㎡)
入居日
2026/06/01
この物件について
お問い合わせする
お問い合わせする
お電話でのご相談も
承ります
承ります
東京
03-6260-7395
営業時間 平日9:00~18:00
所在地・アクセス
所在地
東京都新宿区西新宿2-1-1
エリア
西新宿
最寄駅
都営大江戸線 都庁前駅 徒歩1分
JR山手線 新宿駅 徒歩6分
東京メトロ丸ノ内線 新宿駅 徒歩6分
京王線 新宿駅 徒歩7分
JR山手線 新宿駅 徒歩6分
東京メトロ丸ノ内線 新宿駅 徒歩6分
京王線 新宿駅 徒歩7分
賃貸条件
賃料(坪単価)
相談
礼金
-
共益費(坪単価)
込
償却
-
月額合計(坪単価)
相談
面積
127.02坪
(419.90㎡)
(419.90㎡)
敷金・保証金
相談
入居日
2026/06/01
更新料
-
契約形態
普通賃貸借契約
建物詳細
構造
鉄骨造
土日エントランス
オープン
オープン
-
規模
地上55階地下3階
天井高
2,800mm以上
2,800mm以上
-
竣工
1974年09月
駐車場
○
設備
こだわり設備
個別空調
その他の設備
セントラル空調
駐車場
エレベーター
大型・高層
ランドマーク
スタッフコメント
企業の成長を見据えたオフィス選びをサポート。レイアウトや条件交渉、入居後の運用まで見据えたご提案が可能です。まずはお気軽に条件相談・内見依頼ください。
物件詳細
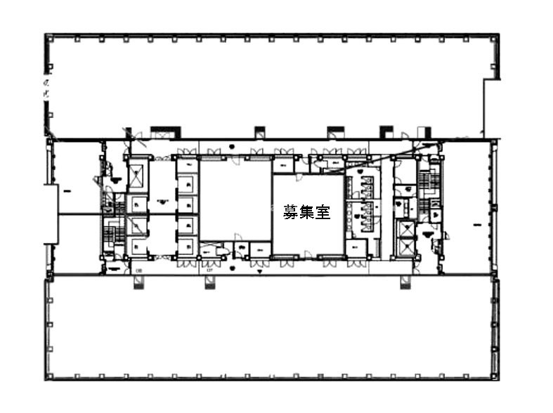
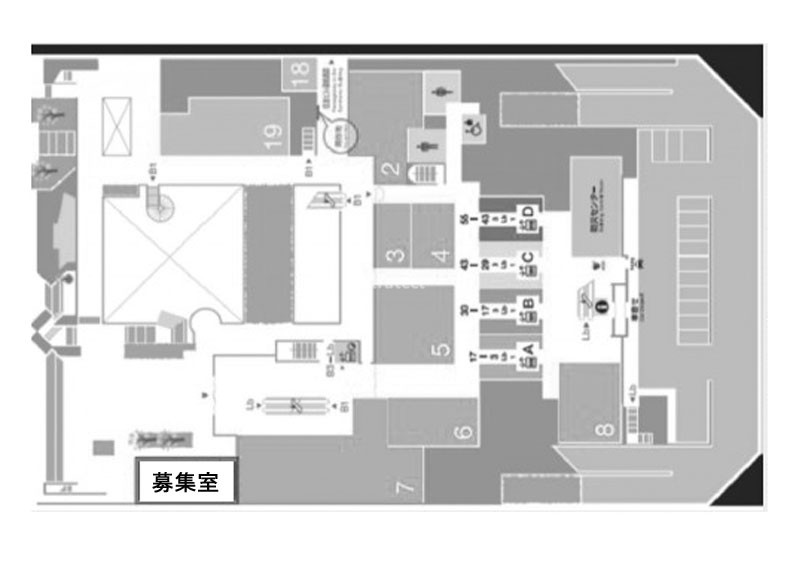
間取り図
contact
この物件について問い合わせる
お電話でのご相談も承ります
東京
03-6260-7395
営業時間 平日9:00~18:00
現在募集中のその他の区画
(募集中の総面積:832.68坪 / 2,752.66㎡)
※チェックボックスにチェックを入れると、複数の物件について一度にお問合せできます。
メールでのお問い合わせはこちら
お電話でのご相談も承ります
Neighborhood
条件の似ている物件
Recommend
同じエリアの人気物件
この物件について詳しく知りたい方は