物件番号:30123
新宿セントランドビル
4階 A
新宿区でオフィス移転を検討中の企業様へ。Stratectが居抜き・セットアップなど豊富な物件から最適なオフィスをご提案。物件探しから移転まで一括サポートします。
Swipe
月額合計
832,260円(@22,000円)
【税込:915,486円】
【税込:915,486円】
賃料
699,855円(@18,500円)
【税込:769,840円】
【税込:769,840円】
共益費
132,405円(@3,500円)
【税込:145,646円】
【税込:145,646円】
面積
37.83坪
(125.06㎡)
(125.06㎡)
入居日
2026/4
この物件について
お問い合わせする
お問い合わせする
お電話でのご相談も
承ります
承ります
東京
03-6260-7395
営業時間 平日9:00~18:00
所在地・アクセス
所在地
東京都新宿区西新宿3-5-1
エリア
西新宿
最寄駅
JR山手線 新宿駅 徒歩10分
JR中央線(快速) 新宿駅 徒歩11分
都営大江戸線 都庁前駅 徒歩6分
都営新宿線 新宿駅 徒歩9分
JR中央線(快速) 新宿駅 徒歩11分
都営大江戸線 都庁前駅 徒歩6分
都営新宿線 新宿駅 徒歩9分
賃貸条件
賃料(坪単価)
699,855円(@18,500円)
【税込:769,840円】
【税込:769,840円】
礼金
-
共益費(坪単価)
132,405円(@3,500円)
【税込:145,646円】
【税込:145,646円】
償却
20%
月額合計(坪単価)
832,260円(@22,000円)
【税込:915,486円】
【税込:915,486円】
面積
37.83坪
(125.06㎡)
(125.06㎡)
敷金・保証金
8,322,600円
入居日
2026/4
更新料
-
契約形態
普通賃貸借契約
建物詳細
構造
SRC
土日エントランス
オープン
オープン
-
規模
地上10階地下2階
天井高
2,800mm以上
2,800mm以上
-
竣工
1994年01月
駐車場
-
設備
こだわり設備
個別空調
男女トイレ別
OAフロア
新耐震基準
エレベーター2基以上
その他の設備
エレベーター
1フロア
大型・高層
ランドマーク
スタッフコメント
企業の成長を見据えたオフィス選びをサポート。レイアウトや条件交渉、入居後の運用まで見据えたご提案が可能です。まずはお気軽に条件相談・内見依頼ください。
物件詳細
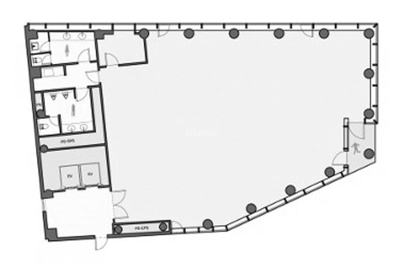
間取り図
contact
この物件について問い合わせる
お電話でのご相談も承ります
東京
03-6260-7395
営業時間 平日9:00~18:00
現在募集中のその他の区画
(募集中の総面積:138.98坪 / 459.44㎡)
※チェックボックスにチェックを入れると、複数の物件について一度にお問合せできます。
メールでのお問い合わせはこちら
お電話でのご相談も承ります
Neighborhood
条件の似ている物件
Recommend
同じエリアの人気物件
この物件について詳しく知りたい方は