物件番号:124686
セイキ第2ビル
3階
千代田区でオフィス移転を検討中の企業様へ。Stratectが居抜き・セットアップなど豊富な物件から最適なオフィスをご提案。物件探しから移転まで一括サポートします。
Swipe
月額合計
440,000円(@11,000円)
【税込:484,000円】
【税込:484,000円】
賃料
440,000円(@11,000円)
【税込:484,000円】
【税込:484,000円】
共益費
込
面積
40.00坪
(132.23㎡)
(132.23㎡)
入居日
即
この物件について
お問い合わせする
お問い合わせする
お電話でのご相談も
承ります
承ります
東京
03-6260-7395
営業時間 平日9:00~18:00
所在地・アクセス
所在地
東京都千代田区外神田5-2-11
エリア
御茶ノ水・水道橋
最寄駅
東京メトロ銀座線 末広町駅 徒歩2分
東京メトロ千代田線 湯島駅 徒歩6分
東京メトロ銀座線 上野広小路駅 徒歩6分
JR山手線 御徒町駅 徒歩6分
東京メトロ千代田線 湯島駅 徒歩6分
東京メトロ銀座線 上野広小路駅 徒歩6分
JR山手線 御徒町駅 徒歩6分
賃貸条件
賃料(坪単価)
440,000円(@11,000円)
【税込:484,000円】
【税込:484,000円】
礼金
-
共益費(坪単価)
込
償却
2ヶ月
月額合計(坪単価)
440,000円(@11,000円)
【税込:484,000円】
【税込:484,000円】
面積
40.00坪
(132.23㎡)
(132.23㎡)
敷金・保証金
7ヶ月
入居日
即
更新料
1ヶ月
契約形態
普通賃貸借契約
建物詳細
構造
SRC
土日エントランス
オープン
オープン
-
規模
地上7階
天井高
2,800mm以上
2,800mm以上
-
竣工
1973年07月
駐車場
-
設備
こだわり設備
個別空調
その他の設備
エレベーター
物件詳細
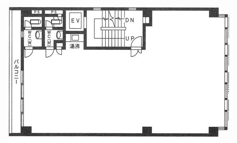
間取り図
contact
この物件について問い合わせる
お電話でのご相談も承ります
東京
03-6260-7395
営業時間 平日9:00~18:00
現在募集中のその他の区画
(募集中の総面積:40.00坪 / 132.23㎡)
※チェックボックスにチェックを入れると、複数の物件について一度にお問合せできます。
メールでのお問い合わせはこちら
お電話でのご相談も承ります
Neighborhood
条件の似ている物件
Recommend
同じエリアの人気物件
この物件について詳しく知りたい方は