物件番号:99

スリーセブンビル

6階
Swipe
月額合計
相談
賃料
相談
共益費
賃料に含む
面積
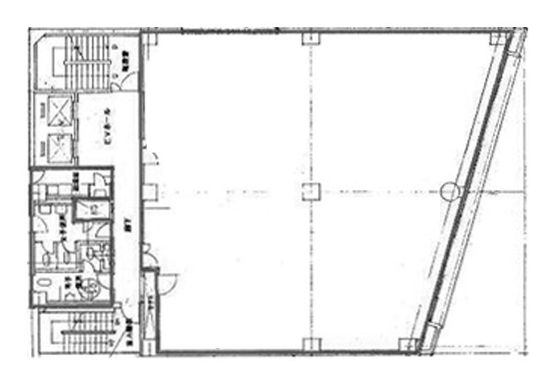
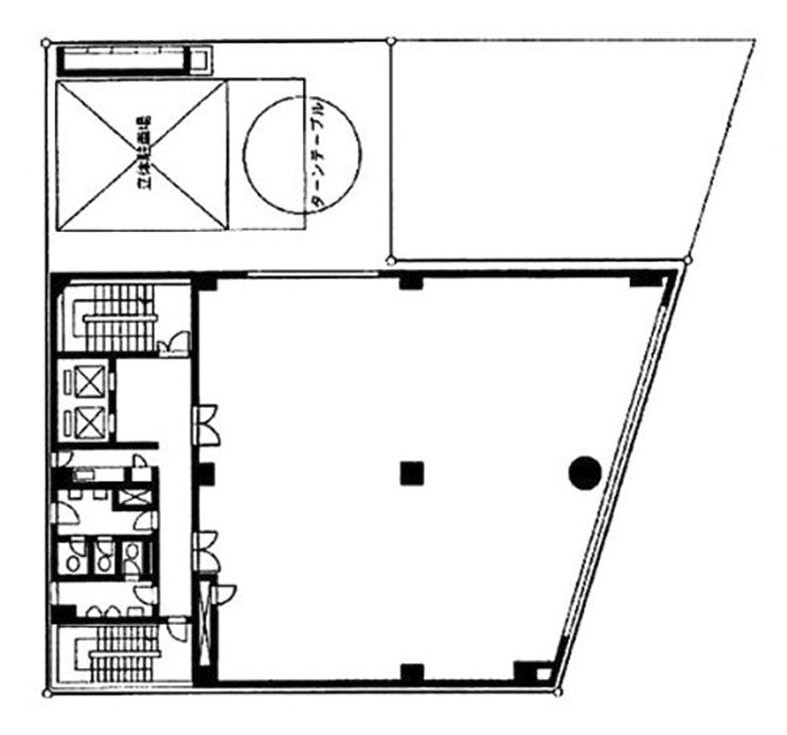
80.42坪
(265.85㎡)
入居日
間取図

所在地・アクセス

所在地
東京都千代田区岩本町3-9-17
エリア
秋葉原・神田・岩本町
最寄駅
都営新宿線 岩本町駅 徒歩1分
東京メトロ日比谷線 秋葉原駅 徒歩2分
JR山手線 秋葉原駅 徒歩4分

賃貸条件

賃料(坪単価)
相談
礼金
-
共益費(坪単価)
賃料に含む
償却
10%
月額合計(坪単価)
相談
面積
80.42坪
(265.85㎡)
敷金・保証金
10ヶ月
入居日
更新料
-
契約形態
普通賃貸借契約

建物詳細

構造
SRC
土日エントランス
オープン
-
規模
地上10階
天井高
2,800mm以上
-
竣工
1985年07月
駐車場
-

設備

現在募集中のその他の区画

(募集中の総面積:160.84坪 / 531.70㎡)
※チェックボックスにチェックを入れると、複数の物件について一度にお問合せできます。
階数
面積
賃料
共益費
間取り
詳細
お気に入り