Swipe
月額合計
1,000,000円(@34,953円)
【税込:1,100,000円】
【税込:1,100,000円】
賃料
1,000,000円(@34,953円)
【税込:1,100,000円】
【税込:1,100,000円】
共益費
込
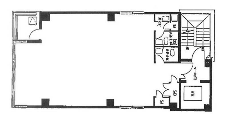
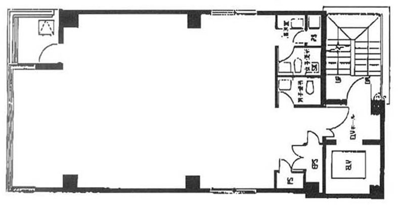
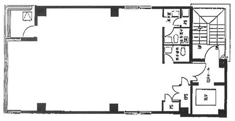
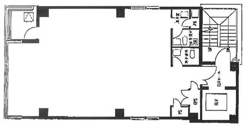
面積
28.61坪
(94.58㎡)
(94.58㎡)
入居日
2026/6/下
この物件について
お問い合わせする
お問い合わせする
お電話でのご相談も
承ります
承ります
東京
03-6260-7395
営業時間 平日9:00~18:00
所在地・アクセス
所在地
東京都千代田区神田岩本町1
エリア
秋葉原・神田・岩本町
最寄駅
都営新宿線 岩本町駅 徒歩1分
JR山手線 秋葉原駅 徒歩5分
JR中央・総武線 秋葉原駅 徒歩5分
JR山手線 秋葉原駅 徒歩5分
JR中央・総武線 秋葉原駅 徒歩5分
賃貸条件
賃料(坪単価)
1,000,000円(@34,953円)
【税込:1,100,000円】
【税込:1,100,000円】
礼金
-
共益費(坪単価)
込
償却
-
月額合計(坪単価)
1,000,000円(@34,953円)
【税込:1,100,000円】
【税込:1,100,000円】
面積
28.61坪
(94.58㎡)
(94.58㎡)
敷金・保証金
0ヶ月
入居日
2026/6/下
更新料
-
契約形態
普通賃貸借契約
建物詳細
構造
鉄骨造
土日エントランス
オープン
オープン
-
規模
地上9階
天井高
2,800mm以上
2,800mm以上
-
竣工
1989年09月
駐車場
-
設備
こだわり設備
個別空調
男女トイレ別
新耐震基準
居抜き・セットアップ
その他の設備
保証金0円
初期費用重視
エレベーター
物件詳細
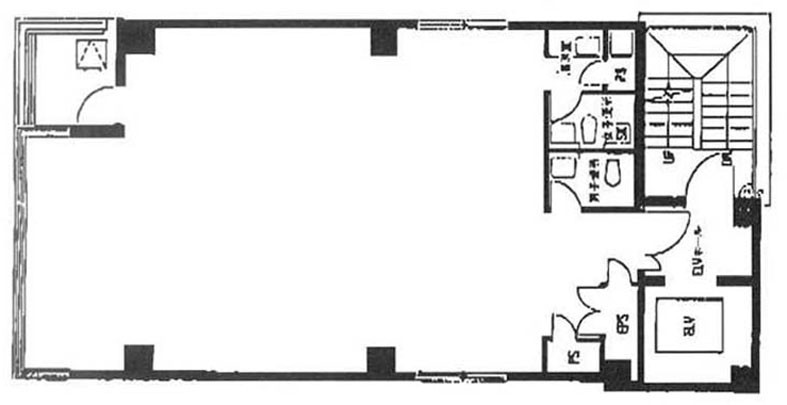
間取り図
contact
この物件について問い合わせる
お電話でのご相談も承ります
東京
03-6260-7395
営業時間 平日9:00~18:00
現在募集中のその他の区画
(募集中の総面積:114.44坪 / 378.32㎡)
※チェックボックスにチェックを入れると、複数の物件について一度にお問合せできます。
メールでのお問い合わせはこちら
お電話でのご相談も承ります
Neighborhood
条件の似ている物件
Recommend
同じエリアの人気物件
この物件について詳しく知りたい方は