物件番号:819301

PMO新日本橋

5階
Swipe
月額合計
相談
賃料
相談
共益費
相談
面積
112.36坪
(371.44㎡)
入居日
2026/11/01
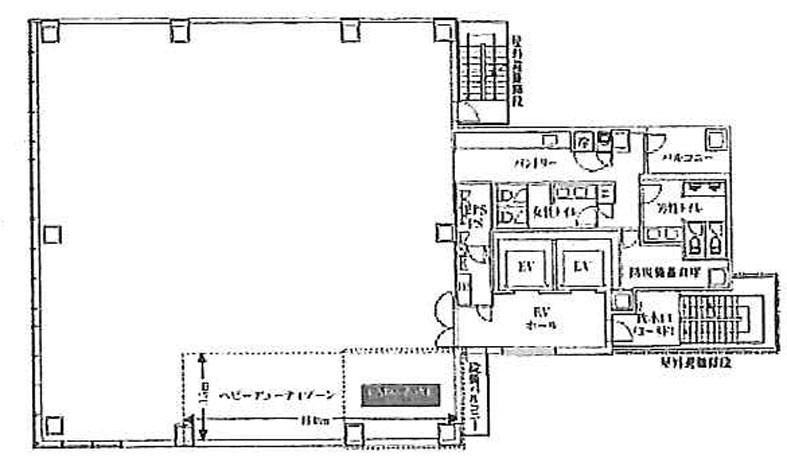
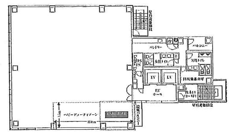
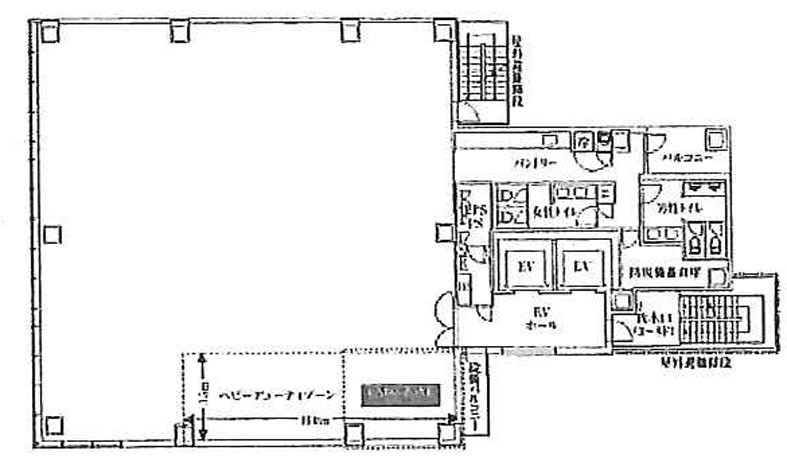
間取図

所在地・アクセス

所在地
東京都中央区日本橋本町4-3
エリア
三越前
最寄駅
JR総武本線 新日本橋駅 徒歩2分
JR山手線 神田駅 徒歩5分
JR中央線(快速) 神田駅 徒歩5分
東京メトロ銀座線 三越前駅 徒歩5分
東京メトロ半蔵門線 三越前駅 徒歩5分
東京メトロ日比谷線 小伝馬町駅 徒歩7分

賃貸条件

賃料(坪単価)
相談
礼金
-
共益費(坪単価)
相談
償却
-
月額合計(坪単価)
相談
面積
112.36坪
(371.44㎡)
敷金・保証金
12ヶ月
入居日
2026/11/01
更新料
-
契約形態
普通賃貸借契約

建物詳細

構造
-
土日エントランス
オープン
-
規模
地上0階
天井高
2,800mm以上
-
竣工
2016年11月
駐車場
-

設備

こだわり設備
個別空調
男女トイレ別
OAフロア
新耐震基準
エレベーター2基以上
その他の設備
エレベーター

現在募集中のその他の区画

(募集中の総面積:561.80坪 / 1,857.20㎡)
※チェックボックスにチェックを入れると、複数の物件について一度にお問合せできます。