Swipe
月額合計
598,500円(@19,000円)
【税込:658,350円】
【税込:658,350円】
賃料
488,250円(@15,500円)
【税込:537,075円】
【税込:537,075円】
共益費
110,250円
(@3,500円)
【税込:121,275円】
(@3,500円)
【税込:121,275円】
面積
31.50坪(104.13㎡)
入居日
2026/3/下
この物件について
お問い合わせする
お問い合わせする
お電話でのご相談も
承ります
承ります
東京
03-6260-7395
営業時間 平日9:00~18:00
所在地・アクセス
所在地
東京都中央区日本橋室町4-2-17
エリア
三越前
最寄駅
JR山手線 神田駅 徒歩3分
JR総武本線 新日本橋駅 徒歩3分
東京メトロ銀座線 三越前駅 徒歩4分
JR総武本線 新日本橋駅 徒歩3分
東京メトロ銀座線 三越前駅 徒歩4分
賃貸条件
賃料(坪単価)
488,250円(@15,500円)
【税込:537,075円】
【税込:537,075円】
礼金
-
共益費(坪単価)
110,250円
(@3,500円)
【税込:121,275円】
(@3,500円)
【税込:121,275円】
償却
1ヶ月
月額合計(坪単価)
598,500円(@19,000円)
【税込:658,350円】
【税込:658,350円】
面積
31.50坪(104.13㎡)
敷金・保証金
10ヶ月
入居日
2026/3/下
更新料
1ヶ月
契約形態
定期借家契約
建物詳細
構造
SRC
土日エントランス
オープン
オープン
-
規模
地上8階地下1階
天井高
2,800mm以上
2,800mm以上
-
竣工
1983年05月
駐車場
-
設備
こだわり設備
個別空調
男女トイレ別
OAフロア
新耐震基準
その他の設備
エレベーター
スタッフコメント
オフィス移転や開設をご検討の企業様におすすめの物件です。条件の相談やフリーレントのご相談、内見依頼などお気軽にお問い合わせください。
物件詳細
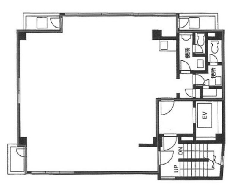
間取り図
contact
この物件について問い合わせる
お電話でのご相談も承ります
東京
03-6260-7395
営業時間 平日9:00~18:00
現在募集中のその他の区画
(募集中の総面積:31.50坪 / 104.13㎡)
※チェックボックスにチェックを入れると、複数の物件について一度にお問合せできます。
メールでのお問い合わせはこちら
お電話でのご相談も承ります
Neighborhood
条件の似ている物件
Recommend
同じエリアの人気物件
この物件について詳しく知りたい方は