Swipe
月額合計
相談
賃料
相談
共益費
相談
面積
157.09坪
(519.31㎡)
(519.31㎡)
入居日
即
この物件について
お問い合わせする
お問い合わせする
お電話でのご相談も
承ります
承ります
東京
03-6260-7395
営業時間 平日9:00~18:00
所在地・アクセス
所在地
東京都千代田区麹町5-1
エリア
麹町・番町・永田町
最寄駅
東京メトロ有楽町線 麹町駅 徒歩2分
JR中央線(快速) 四ツ谷駅 徒歩5分
JR中央線(快速) 四ツ谷駅 徒歩5分
賃貸条件
賃料(坪単価)
相談
礼金
-
共益費(坪単価)
相談
償却
-
月額合計(坪単価)
相談
面積
157.09坪
(519.31㎡)
(519.31㎡)
敷金・保証金
12ヶ月
入居日
即
更新料
-
契約形態
普通賃貸借契約
建物詳細
構造
S造
土日エントランス
オープン
オープン
-
規模
地上9階地下1階
天井高
2,800mm以上
2,800mm以上
-
竣工
1993年09月
駐車場
-
設備
こだわり設備
個別空調
男女トイレ別
新耐震基準
エレベーター2基以上
その他の設備
環境配慮(SDGs)
BCP対応
エレベーター
物件詳細
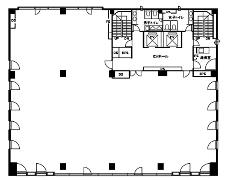
間取り図
contact
この物件について問い合わせる
お電話でのご相談も承ります
東京
03-6260-7395
営業時間 平日9:00~18:00
現在募集中のその他の区画
(募集中の総面積:157.09坪 / 519.31㎡)
※チェックボックスにチェックを入れると、複数の物件について一度にお問合せできます。
メールでのお問い合わせはこちら
お電話でのご相談も承ります
Neighborhood
条件の似ている物件
Recommend
同じエリアの人気物件
この物件について詳しく知りたい方は