Swipe
月額合計
1,612,240円(@28,000円)
【税込:1,773,464円】
【税込:1,773,464円】
賃料
1,410,710円(@24,500円)
【税込:1,551,781円】
【税込:1,551,781円】
共益費
201,530円(@3,500円)
【税込:221,683円】
【税込:221,683円】
面積
57.58坪
(190.35㎡)
(190.35㎡)
入居日
即
この物件について
お問い合わせする
お問い合わせする
お電話でのご相談も
承ります
承ります
東京
03-6260-7395
営業時間 平日9:00~18:00
所在地・アクセス
所在地
東京都千代田区平河町1-3-13
エリア
麹町・番町・永田町
最寄駅
東京メトロ半蔵門線 半蔵門駅 徒歩3分
東京メトロ有楽町線 麹町駅 徒歩4分
東京メトロ有楽町線 麹町駅 徒歩4分
賃貸条件
賃料(坪単価)
1,410,710円(@24,500円)
【税込:1,551,781円】
【税込:1,551,781円】
礼金
-
共益費(坪単価)
201,530円(@3,500円)
【税込:221,683円】
【税込:221,683円】
償却
-
月額合計(坪単価)
1,612,240円(@28,000円)
【税込:1,773,464円】
【税込:1,773,464円】
面積
57.58坪
(190.35㎡)
(190.35㎡)
敷金・保証金
6ヶ月
入居日
即
更新料
-
契約形態
定期借家契約
建物詳細
構造
SRC
土日エントランス
オープン
オープン
-
規模
地上8階地下1階
天井高
2,800mm以上
2,800mm以上
-
竣工
1988年03月
駐車場
○
設備
こだわり設備
個別空調
男女トイレ別
OAフロア
新耐震基準
エレベーター2基以上
その他の設備
初期費用重視
駐車場
リノベーション
エレベーター
1フロア
物件詳細
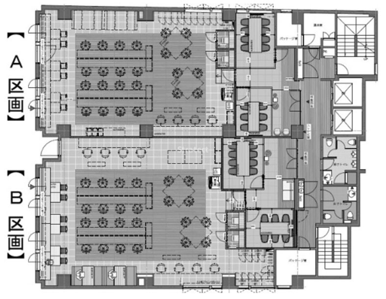
間取り図
contact
この物件について問い合わせる
お電話でのご相談も承ります
東京
03-6260-7395
営業時間 平日9:00~18:00
現在募集中のその他の区画
(募集中の総面積:214.30坪 / 708.43㎡)
※チェックボックスにチェックを入れると、複数の物件について一度にお問合せできます。
メールでのお問い合わせはこちら
お電話でのご相談も承ります
Neighborhood
条件の似ている物件
Recommend
同じエリアの人気物件
この物件について詳しく知りたい方は