Swipe
月額合計
相談
賃料
相談
共益費
相談
面積
34.80坪
(115.04㎡)
(115.04㎡)
入居日
2027/02/01
この物件について
お問い合わせする
お問い合わせする
お電話でのご相談も
承ります
承ります
東京
03-6260-7395
営業時間 平日9:00~18:00
所在地・アクセス
所在地
東京都千代田区内神田1-1-12
エリア
秋葉原・神田・岩本町、 御茶ノ水・水道橋
最寄駅
東京メトロ千代田線 大手町駅 徒歩2分
賃貸条件
賃料(坪単価)
相談
礼金
-
共益費(坪単価)
相談
償却
-
月額合計(坪単価)
相談
面積
34.80坪
(115.04㎡)
(115.04㎡)
敷金・保証金
相談
入居日
2027/02/01
更新料
-
契約形態
普通賃貸借契約
建物詳細
構造
SRC
土日エントランス
オープン
オープン
-
規模
地上26階地下3階
天井高
2,800mm以上
2,800mm以上
-
竣工
2025年11月
駐車場
○
設備
こだわり設備
男女トイレ別
OAフロア
新耐震基準
エレベーター2基以上
その他の設備
セントラル空調
新築
駐車場
免震・制振
エレベーター
1フロア
大型・高層
ランドマーク
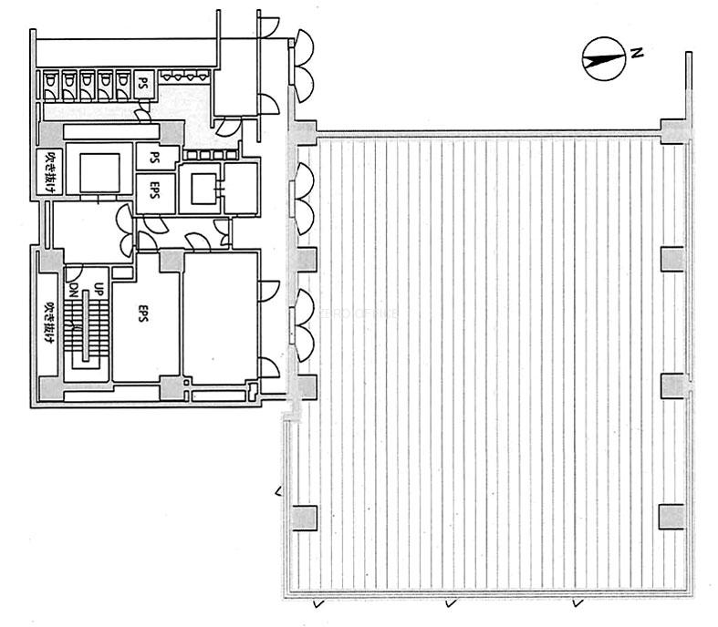
物件詳細
間取り図
contact
この物件について問い合わせる
お電話でのご相談も承ります
東京
03-6260-7395
営業時間 平日9:00~18:00
現在募集中のその他の区画
(募集中の総面積:563.03坪 / 1,861.27㎡)
※チェックボックスにチェックを入れると、複数の物件について一度にお問合せできます。
メールでのお問い合わせはこちら
お電話でのご相談も承ります
Neighborhood
条件の似ている物件
Recommend
同じエリアの人気物件
この物件について詳しく知りたい方は