物件番号:155078
THE PORTAL 田町
2階
港区でオフィスをお探しの方へ。新橋・浜松町・虎ノ門など人気ビジネスエリアの物件情報を豊富にご用意。ご要望に合う最適なオフィスをご提案します。
Swipe
月額合計
1,905,090円(@33,000円)
【税込:2,095,599円】
【税込:2,095,599円】
賃料
1,905,090円(@33,000円)
【税込:2,095,599円】
【税込:2,095,599円】
共益費
込
面積
57.73坪
(190.84㎡)
(190.84㎡)
入居日
2026/01/01
この物件について
お問い合わせする
お問い合わせする
お電話でのご相談も
承ります
承ります
東京
03-6260-7395
営業時間 平日9:00~18:00
所在地・アクセス
所在地
東京都港区芝5-30-9
エリア
浜松町・芝公園・田町・三田
最寄駅
都営三田線 三田駅 徒歩1分
JR山手線 田町駅 徒歩2分
JR山手線 田町駅 徒歩2分
賃貸条件
賃料(坪単価)
1,905,090円(@33,000円)
【税込:2,095,599円】
【税込:2,095,599円】
礼金
-
共益費(坪単価)
込
償却
-
月額合計(坪単価)
1,905,090円(@33,000円)
【税込:2,095,599円】
【税込:2,095,599円】
面積
57.73坪
(190.84㎡)
(190.84㎡)
敷金・保証金
6ヶ月
入居日
2026/01/01
更新料
-
契約形態
普通賃貸借契約
建物詳細
構造
鉄骨造
土日エントランス
オープン
オープン
-
規模
地上10階地下1階
天井高
2,800mm以上
2,800mm以上
-
竣工
1987年09月
駐車場
-
設備
こだわり設備
個別空調
男女トイレ別
OAフロア
新耐震基準
居抜き・セットアップ
その他の設備
エレベーター
1フロア
スタッフコメント
企業の成長を見据えたオフィス選びをサポート。レイアウトや条件交渉、入居後の運用まで見据えたご提案が可能です。まずはお気軽に条件相談・内見依頼ください。
物件詳細
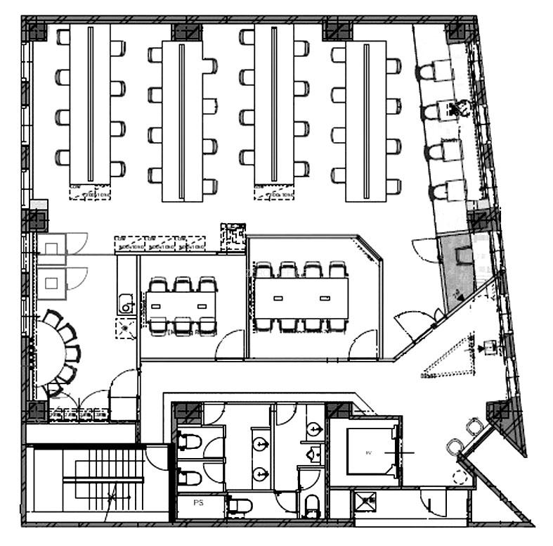
間取り図
contact
この物件について問い合わせる
お電話でのご相談も承ります
東京
03-6260-7395
営業時間 平日9:00~18:00
現在募集中のその他の区画
(募集中の総面積:288.65坪 / 954.20㎡)
※チェックボックスにチェックを入れると、複数の物件について一度にお問合せできます。
メールでのお問い合わせはこちら
お電話でのご相談も承ります
Neighborhood
条件の似ている物件
Recommend
同じエリアの人気物件
この物件について詳しく知りたい方は