物件番号:142748
リードシー恵比寿ビル
地下1階
渋谷区でオフィス移転を検討中の企業様へ。Stratectが居抜き・セットアップなど豊富な物件から最適なオフィスをご提案。物件探しから移転まで一括サポートします。
Swipe
月額合計
1,270,000円(@44,892円)
【税込:1,397,000円】
【税込:1,397,000円】
賃料
1,270,000円(@44,892円)
【税込:1,397,000円】
【税込:1,397,000円】
共益費
込
面積
28.29坪
(93.52㎡)
(93.52㎡)
入居日
2026/2/上
この物件について
お問い合わせする
お問い合わせする
お電話でのご相談も
承ります
承ります
東京
03-6260-7395
営業時間 平日9:00~18:00
所在地・アクセス
所在地
東京都渋谷区恵比寿南3-2-13
エリア
恵比寿・代官山・広尾
最寄駅
JR山手線 恵比寿駅 徒歩4分
東急東横線 代官山駅 徒歩6分
東急東横線 代官山駅 徒歩6分
賃貸条件
賃料(坪単価)
1,270,000円(@44,892円)
【税込:1,397,000円】
【税込:1,397,000円】
礼金
-
共益費(坪単価)
込
償却
-
月額合計(坪単価)
1,270,000円(@44,892円)
【税込:1,397,000円】
【税込:1,397,000円】
面積
28.29坪
(93.52㎡)
(93.52㎡)
敷金・保証金
相談
入居日
2026/2/上
更新料
-
契約形態
普通賃貸借契約
建物詳細
構造
RC
土日エントランス
オープン
オープン
-
規模
地上4階
天井高
2,800mm以上
2,800mm以上
-
竣工
1993年08月
駐車場
-
設備
こだわり設備
居抜き・セットアップ
物件詳細
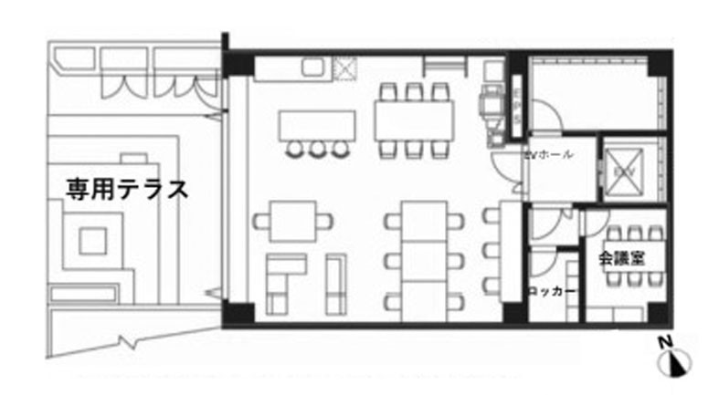
間取り図
contact
この物件について問い合わせる
お電話でのご相談も承ります
東京
03-6260-7395
営業時間 平日9:00~18:00
現在募集中のその他の区画
(募集中の総面積:28.29坪 / 93.52㎡)
※チェックボックスにチェックを入れると、複数の物件について一度にお問合せできます。
メールでのお問い合わせはこちら
お電話でのご相談も承ります
Neighborhood
条件の似ている物件
Recommend
同じエリアの人気物件
この物件について詳しく知りたい方は