物件番号:130458
TAMA WOODY GATE EBISU
4階
渋谷区でオフィス移転を検討中の企業様へ。Stratectが居抜き・セットアップなど豊富な物件から最適なオフィスをご提案。物件探しから移転まで一括サポートします。
Swipe
月額合計
相談
賃料
相談
共益費
込
面積
70.37坪
(232.63㎡)
(232.63㎡)
入居日
即
この物件について
お問い合わせする
お問い合わせする
お電話でのご相談も
承ります
承ります
東京
03-6260-7395
営業時間 平日9:00~18:00
所在地・アクセス
所在地
東京都渋谷区恵比寿1-15-1
エリア
恵比寿・代官山・広尾
最寄駅
東京メトロ日比谷線 恵比寿駅 徒歩4分
JR山手線 恵比寿駅 徒歩4分
JR埼京線 恵比寿駅 徒歩4分
JR山手線 恵比寿駅 徒歩4分
JR埼京線 恵比寿駅 徒歩4分
賃貸条件
賃料(坪単価)
相談
礼金
-
共益費(坪単価)
込
償却
2ヶ月
月額合計(坪単価)
相談
面積
70.37坪
(232.63㎡)
(232.63㎡)
敷金・保証金
12ヶ月
入居日
即
更新料
-
契約形態
普通賃貸借契約
建物詳細
構造
SRC
土日エントランス
オープン
オープン
-
規模
地上10階地下1階
天井高
2,800mm以上
2,800mm以上
-
竣工
1992年03月
駐車場
-
設備
こだわり設備
個別空調
新耐震基準
その他の設備
エレベーター
物件詳細
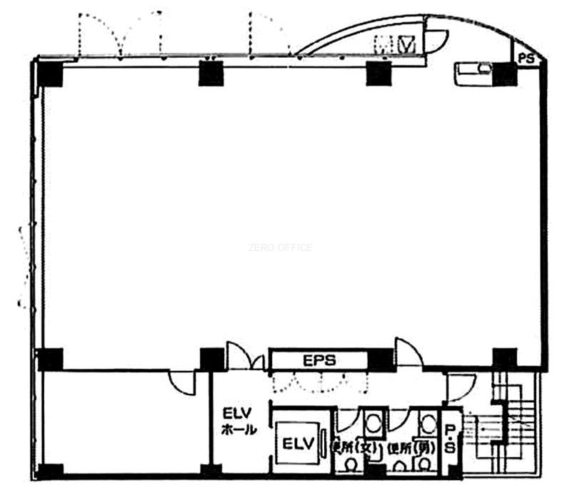
間取り図
contact
この物件について問い合わせる
お電話でのご相談も承ります
東京
03-6260-7395
営業時間 平日9:00~18:00
現在募集中のその他の区画
(募集中の総面積:70.37坪 / 232.63㎡)
※チェックボックスにチェックを入れると、複数の物件について一度にお問合せできます。
メールでのお問い合わせはこちら
お電話でのご相談も承ります
Neighborhood
条件の似ている物件
Recommend
同じエリアの人気物件
この物件について詳しく知りたい方は