物件番号:131027
フジキカイ広尾ビル
8階
渋谷区でオフィス移転を検討中の企業様へ。Stratectが居抜き・セットアップなど豊富な物件から最適なオフィスをご提案。物件探しから移転まで一括サポートします。
Swipe
月額合計
3,902,925円(@32,500円)
【税込:4,293,217円】
【税込:4,293,217円】
賃料
3,482,610円(@29,000円)
【税込:3,830,871円】
【税込:3,830,871円】
共益費
420,315円(@3,500円)
【税込:462,347円】
【税込:462,347円】
面積
120.09坪
(396.99㎡)
(396.99㎡)
入居日
即
この物件について
お問い合わせする
お問い合わせする
お電話でのご相談も
承ります
承ります
東京
03-6260-7395
営業時間 平日9:00~18:00
所在地・アクセス
所在地
東京都渋谷区広尾1-13-1
エリア
恵比寿・代官山・広尾
最寄駅
JR山手線 恵比寿駅 徒歩5分
東京メトロ日比谷線 恵比寿駅 徒歩5分
東京メトロ日比谷線 恵比寿駅 徒歩5分
賃貸条件
賃料(坪単価)
3,482,610円(@29,000円)
【税込:3,830,871円】
【税込:3,830,871円】
礼金
-
共益費(坪単価)
420,315円(@3,500円)
【税込:462,347円】
【税込:462,347円】
償却
-
月額合計(坪単価)
3,902,925円(@32,500円)
【税込:4,293,217円】
【税込:4,293,217円】
面積
120.09坪
(396.99㎡)
(396.99㎡)
敷金・保証金
12ヶ月
入居日
即
更新料
-
契約形態
普通賃貸借契約
建物詳細
構造
SRC
土日エントランス
オープン
オープン
-
規模
地上8階地下1階
天井高
2,800mm以上
2,800mm以上
-
竣工
2001年
駐車場
○
設備
こだわり設備
OAフロア
新耐震基準
その他の設備
駐車場
エレベーター
大型・高層
ランドマーク
物件詳細
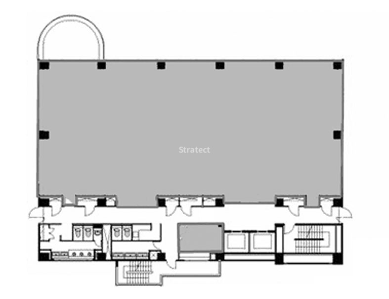
間取り図
contact
この物件について問い合わせる
お電話でのご相談も承ります
東京
03-6260-7395
営業時間 平日9:00~18:00
現在募集中のその他の区画
(募集中の総面積:120.09坪 / 396.99㎡)
※チェックボックスにチェックを入れると、複数の物件について一度にお問合せできます。
メールでのお問い合わせはこちら
お電話でのご相談も承ります
Neighborhood
条件の似ている物件
Recommend
同じエリアの人気物件
この物件について詳しく知りたい方は