物件番号:819342

文芸社新宿御苑ビル

3階
Swipe
月額合計
1,468,130円(@19,000円)
【税込:1,614,943円】
賃料
1,159,050円(@15,000円)
【税込:1,274,955円】
共益費
309,080円(@4,000円)
【税込:339,988円】
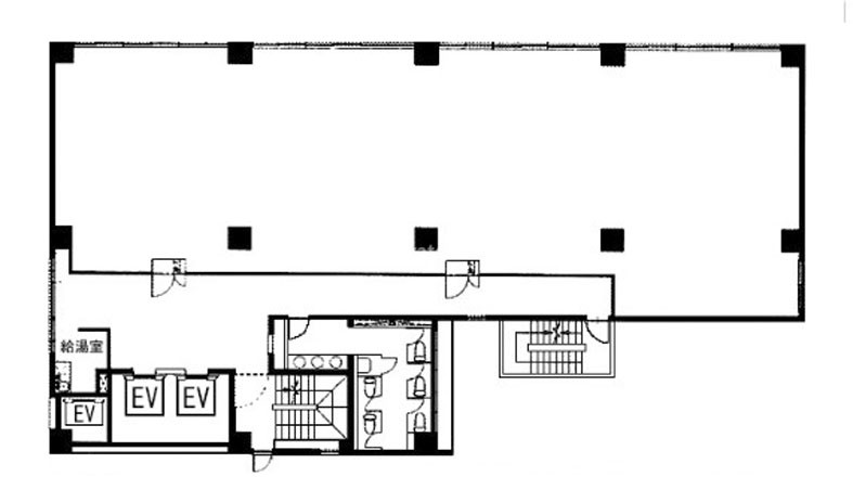
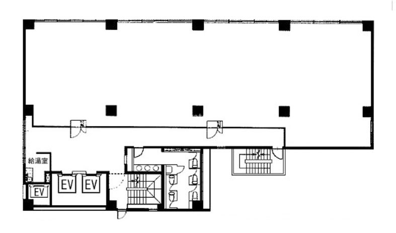
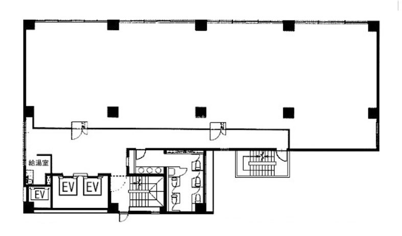
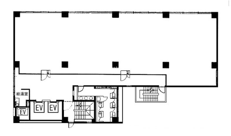
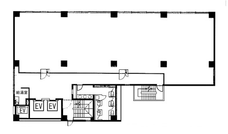
面積
77.27坪
(255.44㎡)
入居日
間取図

所在地・アクセス

所在地
東京都新宿区新宿1-11-7
エリア
四谷・四谷三丁目、 新宿・御苑
最寄駅
東京メトロ丸ノ内線 新宿御苑前駅 徒歩2分

賃貸条件

賃料(坪単価)
1,159,050円(@15,000円)
【税込:1,274,955円】
礼金
1ヶ月
共益費(坪単価)
309,080円(@4,000円)
【税込:339,988円】
償却
-
月額合計(坪単価)
1,468,130円(@19,000円)
【税込:1,614,943円】
面積
77.27坪
(255.44㎡)
敷金・保証金
10ヶ月
入居日
更新料
-
契約形態
定期借家契約

建物詳細

構造
SRC
土日エントランス
オープン
-
規模
地上8階
天井高
2,800mm以上
-
竣工
1986年03月
駐車場
-

設備

こだわり設備
個別空調
男女トイレ別
新耐震基準

現在募集中のその他の区画

(募集中の総面積:386.35坪 / 1,277.20㎡)
※チェックボックスにチェックを入れると、複数の物件について一度にお問合せできます。