物件番号:819211
住友不動産渋谷ファーストタワー
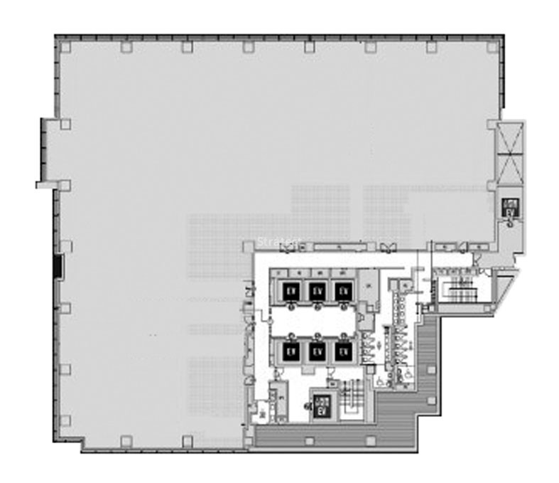
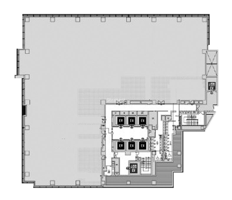
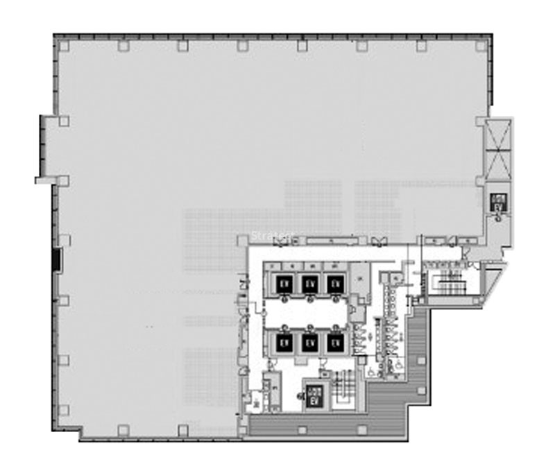
4階
渋谷区でオフィス移転を検討中の企業様へ。Stratectが居抜き・セットアップなど豊富な物件から最適なオフィスをご提案。物件探しから移転まで一括サポートします。
Swipe
月額合計
相談
賃料
相談
共益費
相談
面積
561.98坪
(1,857.79㎡)
(グロス)
(1,857.79㎡)
(グロス)
入居日
即
この物件について
お問い合わせする
お問い合わせする
お電話でのご相談も
承ります
承ります
東京
03-6260-7395
営業時間 平日9:00~18:00
所在地・アクセス
所在地
東京都渋谷区東1-2-20
エリア
渋谷
最寄駅
JR山手線 渋谷駅 徒歩8分
東京メトロ銀座線 表参道駅 徒歩10分
東京メトロ銀座線 表参道駅 徒歩10分
賃貸条件
賃料(坪単価)
相談
礼金
-
共益費(坪単価)
相談
償却
-
月額合計(坪単価)
相談
面積
561.98坪
(1,857.79㎡)
(グロス)
(1,857.79㎡)
(グロス)
敷金・保証金
相談
入居日
即
更新料
-
契約形態
普通賃貸借契約
建物詳細
構造
S造
土日エントランス
オープン
オープン
-
規模
地上25階地下3階
天井高
2,800mm以上
2,800mm以上
-
竣工
2010年08月
駐車場
○
設備
こだわり設備
個別空調
男女トイレ別
OAフロア
新耐震基準
エレベーター2基以上
その他の設備
駐車場
エレベーター
大型・高層
物件詳細
間取り図
contact
この物件について問い合わせる
お電話でのご相談も承ります
東京
03-6260-7395
営業時間 平日9:00~18:00
現在募集中のその他の区画
(募集中の総面積:1,685.94坪 / 5,573.37㎡)
※チェックボックスにチェックを入れると、複数の物件について一度にお問合せできます。
メールでのお問い合わせはこちら
お電話でのご相談も承ります
Neighborhood
条件の似ている物件
Recommend
同じエリアの人気物件
この物件について詳しく知りたい方は