Swipe
月額合計
相談
賃料
相談
共益費
込
面積
659.83坪
(2,181.26㎡)
(2,181.26㎡)
入居日
2027/02/01
この物件について
お問い合わせする
お問い合わせする
お電話でのご相談も
承ります
承ります
東京
03-6260-7395
営業時間 平日9:00~18:00
所在地・アクセス
所在地
東京都中央区日本橋室町2-1-1
エリア
八重洲・日本橋・京橋
最寄駅
東京メトロ銀座線 三越前駅 徒歩1分
東京メトロ半蔵門線 三越前駅 徒歩1分
東京メトロ半蔵門線 三越前駅 徒歩1分
賃貸条件
賃料(坪単価)
相談
礼金
-
共益費(坪単価)
込
償却
-
月額合計(坪単価)
相談
面積
659.83坪
(2,181.26㎡)
(2,181.26㎡)
敷金・保証金
相談
入居日
2027/02/01
更新料
-
契約形態
定期借家契約
建物詳細
構造
SRC造
土日エントランス
オープン
オープン
-
規模
地上38階地下4階
天井高
2,800mm以上
2,800mm以上
-
竣工
2005年07月
駐車場
-
設備
こだわり設備
個別空調
男女トイレ別
OAフロア
新耐震基準
エレベーター2基以上
その他の設備
環境配慮(SDGs)
大型・高層
物件詳細
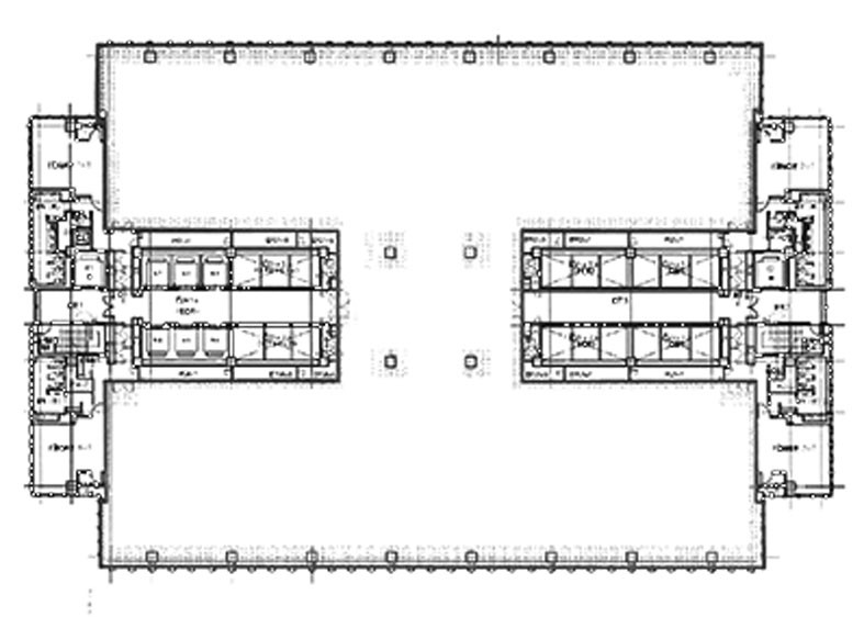
間取り図
contact
この物件について問い合わせる
お電話でのご相談も承ります
東京
03-6260-7395
営業時間 平日9:00~18:00
現在募集中のその他の区画
(募集中の総面積:659.83坪 / 2,181.26㎡)
※チェックボックスにチェックを入れると、複数の物件について一度にお問合せできます。
メールでのお問い合わせはこちら
お電話でのご相談も承ります
Neighborhood
条件の似ている物件
Recommend
同じエリアの人気物件
この物件について詳しく知りたい方は