物件番号:701093
ユーザック法円坂ビル
5階 501
Stratectでは物件情報を毎日更新。居抜き物件やセットアップオフィスなど、豊富な物件量と最新の空室情報でお客様のご要望に合わせたオフィスをご提案致します。お気軽にご相談ください。
Swipe
月額合計
80,000円(@8,016円)
【税込:88,000円】
【税込:88,000円】
賃料
70,000円(@7,014円)
【税込:77,000円】
【税込:77,000円】
共益費
10,000円(@1,002円)
【税込:11,000円】
【税込:11,000円】
面積
9.98坪
(32.99㎡)
(32.99㎡)
入居日
即
この物件について
お問い合わせする
お問い合わせする
お電話でのご相談も
承ります
承ります
大阪・兵庫
06-6131-7871
営業時間 平日9:00~18:00
所在地・アクセス
所在地
大阪府大阪市中央区森ノ宮中央2-7-20
エリア
京橋・OBP
最寄駅
大阪メトロ中央線 森ノ宮駅 徒歩4分
大阪環状線 森ノ宮駅 徒歩4分
大阪環状線 森ノ宮駅 徒歩4分
賃貸条件
賃料(坪単価)
70,000円(@7,014円)
【税込:77,000円】
【税込:77,000円】
礼金
2ヶ月
共益費(坪単価)
10,000円(@1,002円)
【税込:11,000円】
【税込:11,000円】
償却
-
月額合計(坪単価)
80,000円(@8,016円)
【税込:88,000円】
【税込:88,000円】
面積
9.98坪
(32.99㎡)
(32.99㎡)
敷金・保証金
2ヶ月
入居日
即
更新料
-
契約形態
普通賃貸借契約
建物詳細
構造
SRC
土日エントランス
オープン
オープン
-
規模
地上9階
天井高
2,800mm以上
2,800mm以上
-
竣工
1987年09月
駐車場
-
設備
こだわり設備
新耐震基準
その他の設備
初期費用重視
坪単価1万円以下
エレベーター
スタッフコメント
オフィス移転や開設をご検討の企業様におすすめの物件です。条件の相談やフリーレントのご相談、内見依頼などお気軽にお問い合わせください。
物件詳細
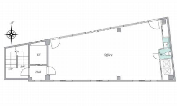
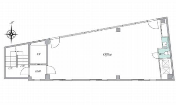
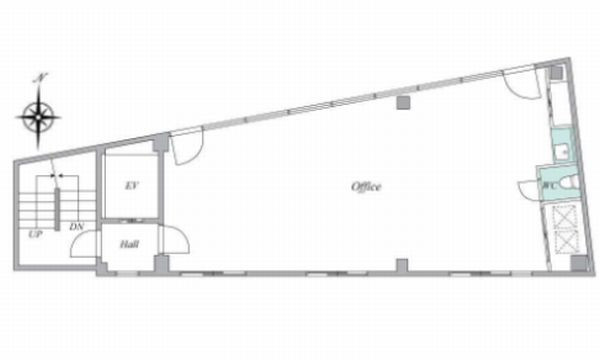
間取り図
contact
この物件について問い合わせる
お電話でのご相談も承ります
大阪・兵庫
06-6131-7871
営業時間 平日9:00~18:00
現在募集中のその他の区画
(募集中の総面積:44.12坪 / 145.85㎡)
※チェックボックスにチェックを入れると、複数の物件について一度にお問合せできます。
メールでのお問い合わせはこちら
お電話でのご相談も承ります
Neighborhood
条件の似ている物件
Recommend
同じエリアの人気物件
この物件について詳しく知りたい方は