Swipe
月額合計
相談
賃料
相談
共益費
相談
面積
458.70坪
(1,516.36㎡)
(1,516.36㎡)
入居日
2027/4/上
この物件について
お問い合わせする
お問い合わせする
お電話でのご相談も
承ります
承ります
東京
03-6260-7395
営業時間 平日9:00~18:00
所在地・アクセス
所在地
東京都港区六本木6-11-1
エリア
六本木・麻布・白金
最寄駅
都営大江戸線 麻布十番駅 徒歩4分
都営大江戸線 六本木駅 徒歩5分
東京メトロ日比谷線 六本木駅 徒歩5分
東京メトロ南北線 麻布十番駅 徒歩7分
都営大江戸線 六本木駅 徒歩5分
東京メトロ日比谷線 六本木駅 徒歩5分
東京メトロ南北線 麻布十番駅 徒歩7分
賃貸条件
賃料(坪単価)
相談
礼金
-
共益費(坪単価)
相談
償却
-
月額合計(坪単価)
相談
面積
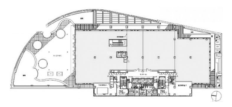
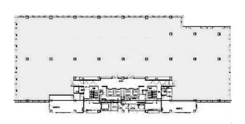
458.70坪
(1,516.36㎡)
(1,516.36㎡)
敷金・保証金
相談
入居日
2027/4/上
更新料
-
契約形態
普通賃貸借契約
建物詳細
構造
S造
土日エントランス
オープン
オープン
-
規模
地上15階地下2階
天井高
2,800mm以上
2,800mm以上
○
竣工
2001年07月
駐車場
-
設備
こだわり設備
個別空調
男女トイレ別
新耐震基準
その他の設備
天井高2,800mm以上
エレベーター
物件詳細
間取り図
contact
この物件について問い合わせる
お電話でのご相談も承ります
東京
03-6260-7395
営業時間 平日9:00~18:00
現在募集中のその他の区画
(募集中の総面積:826.70坪 / 2,732.89㎡)
※チェックボックスにチェックを入れると、複数の物件について一度にお問合せできます。
メールでのお問い合わせはこちら
お電話でのご相談も承ります
Neighborhood
条件の似ている物件
Recommend
同じエリアの人気物件
この物件について詳しく知りたい方は