物件番号:144644
四谷トーセイビル
7階
新宿区でオフィス移転を検討中の企業様へ。Stratectが居抜き・セットアップなど豊富な物件から最適なオフィスをご提案。物件探しから移転まで一括サポートします。
Swipe
月額合計
相談
賃料
相談
共益費
込
面積
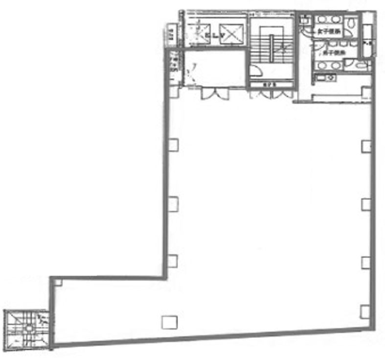
86.85坪
(287.11㎡)
(287.11㎡)
入居日
2026/08/01
この物件について
お問い合わせする
お問い合わせする
お電話でのご相談も
承ります
承ります
東京
03-6260-7395
営業時間 平日9:00~18:00
所在地・アクセス
所在地
東京都新宿区四谷4-3-20
エリア
四谷・四谷三丁目
最寄駅
東京メトロ丸ノ内線 四谷三丁目駅 徒歩3分
東京メトロ丸ノ内線 新宿御苑前駅 徒歩6分
都営新宿線 曙橋駅 徒歩10分
東京メトロ丸ノ内線 新宿御苑前駅 徒歩6分
都営新宿線 曙橋駅 徒歩10分
賃貸条件
賃料(坪単価)
相談
礼金
-
共益費(坪単価)
込
償却
-
月額合計(坪単価)
相談
面積
86.85坪
(287.11㎡)
(287.11㎡)
敷金・保証金
10ヶ月
入居日
2026/08/01
更新料
-
契約形態
普通賃貸借契約
建物詳細
構造
SRC
土日エントランス
オープン
オープン
-
規模
地上9階
天井高
2,800mm以上
2,800mm以上
-
竣工
1990年11月
駐車場
-
設備
こだわり設備
個別空調
新耐震基準
その他の設備
エレベーター
スタッフコメント
企業の成長を見据えたオフィス選びをサポート。レイアウトや条件交渉、入居後の運用まで見据えたご提案が可能です。まずはお気軽に条件相談・内見依頼ください。
物件詳細
間取り図
contact
この物件について問い合わせる
お電話でのご相談も承ります
東京
03-6260-7395
営業時間 平日9:00~18:00
現在募集中のその他の区画
(募集中の総面積:260.55坪 / 861.33㎡)
※チェックボックスにチェックを入れると、複数の物件について一度にお問合せできます。
メールでのお問い合わせはこちら
お電話でのご相談も承ります
Neighborhood
条件の似ている物件
Recommend
同じエリアの人気物件
この物件について詳しく知りたい方は