物件番号:145922
TWG日本橋イーストII
5階
中央区でオフィスをお探しの方へ。日本橋・京橋・銀座など主要ビジネスエリアの物件情報を豊富にご用意。ご要望に合う最適なオフィスをご提案します。
Swipe
月額合計
相談
賃料
相談
共益費
込
面積
30.06坪
(99.37㎡)
(グロス)
(99.37㎡)
(グロス)
入居日
即
この物件について
お問い合わせする
お問い合わせする
お電話でのご相談も
承ります
承ります
東京
03-6260-7395
営業時間 平日9:00~18:00
所在地・アクセス
所在地
東京都中央区日本橋富沢町10-11
エリア
小伝馬町・人形町・水天宮前、 浜町・馬喰町・東日本橋
最寄駅
東京メトロ日比谷線 小伝馬町駅 徒歩6分
都営浅草線 東日本橋駅 徒歩3分
都営新宿線 馬喰横山駅 徒歩3分
JR総武本線 馬喰町駅 徒歩5分
都営浅草線 東日本橋駅 徒歩3分
都営新宿線 馬喰横山駅 徒歩3分
JR総武本線 馬喰町駅 徒歩5分
賃貸条件
賃料(坪単価)
相談
礼金
-
共益費(坪単価)
込
償却
-
月額合計(坪単価)
相談
面積
30.06坪
(99.37㎡)
(グロス)
(99.37㎡)
(グロス)
敷金・保証金
6ヶ月
入居日
即
更新料
-
契約形態
普通賃貸借契約
建物詳細
構造
鉄骨造
土日エントランス
オープン
オープン
-
規模
地上10階
天井高
2,800mm以上
2,800mm以上
-
竣工
2021年10月
駐車場
-
設備
こだわり設備
個別空調
男女トイレ別
OAフロア
新耐震基準
居抜き・セットアップ
その他の設備
築浅(3年以内)
エレベーター
スタッフコメント
オフィス移転や開設をご検討の企業様におすすめの物件です。条件の相談やフリーレントのご相談、内見依頼などお気軽にお問い合わせください。
物件詳細
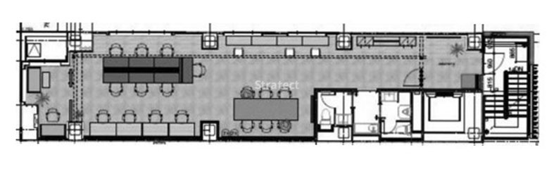
間取り図
contact
この物件について問い合わせる
お電話でのご相談も承ります
東京
03-6260-7395
営業時間 平日9:00~18:00
現在募集中のその他の区画
(募集中の総面積:90.18坪 / 298.11㎡)
※チェックボックスにチェックを入れると、複数の物件について一度にお問合せできます。
メールでのお問い合わせはこちら
お電話でのご相談も承ります
Neighborhood
条件の似ている物件
Recommend
同じエリアの人気物件
この物件について詳しく知りたい方は