Swipe
月額合計
相談
賃料
相談
共益費
込
面積
21.50坪
(71.07㎡)
(71.07㎡)
入居日
相談
この物件について
お問い合わせする
お問い合わせする
お電話でのご相談も
承ります
承ります
東京
03-6260-7395
営業時間 平日9:00~18:00
所在地・アクセス
所在地
東京都千代田区麹町4-1-4
エリア
麹町・番町・永田町
最寄駅
東京メトロ有楽町線 麹町駅 徒歩1分
東京メトロ半蔵門線 半蔵門駅 徒歩4分
JR中央線(快速) 四ツ谷駅 徒歩7分
JR中央・総武線 四ツ谷駅 徒歩7分
東京メトロ半蔵門線 半蔵門駅 徒歩4分
JR中央線(快速) 四ツ谷駅 徒歩7分
JR中央・総武線 四ツ谷駅 徒歩7分
賃貸条件
賃料(坪単価)
相談
礼金
-
共益費(坪単価)
込
償却
-
月額合計(坪単価)
相談
面積
21.50坪
(71.07㎡)
(71.07㎡)
敷金・保証金
12ヶ月
入居日
相談
更新料
-
契約形態
定期借家契約
建物詳細
構造
SRC
土日エントランス
オープン
オープン
-
規模
地上8階地下1階
天井高
2,800mm以上
2,800mm以上
-
竣工
1972年04月
駐車場
-
設備
こだわり設備
個別空調
その他の設備
エレベーター
大型・高層
ランドマーク
物件詳細
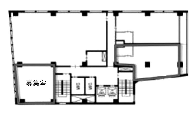
間取り図
contact
この物件について問い合わせる
お電話でのご相談も承ります
東京
03-6260-7395
営業時間 平日9:00~18:00
現在募集中のその他の区画
(募集中の総面積:133.71坪 / 442.01㎡)
※チェックボックスにチェックを入れると、複数の物件について一度にお問合せできます。
メールでのお問い合わせはこちら
お電話でのご相談も承ります
Neighborhood
条件の似ている物件
Recommend
同じエリアの人気物件
この物件について詳しく知りたい方は