物件番号:701373
中之島ダイビル
31階
オフィス移転・事務所移転のご相談はStratectへ。居抜きオフィスやセットアップオフィスなど豊富な物件情報から、ご要望に合うオフィスをご提案します。
Swipe
月額合計
相談
賃料
相談
共益費
相談
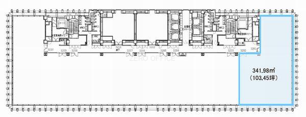
面積
471.36坪
(1,558.21㎡)
(1,558.21㎡)
入居日
2026/10
この物件について
お問い合わせする
お問い合わせする
お電話でのご相談も
承ります
承ります
大阪・兵庫
06-6131-7871
営業時間 平日9:00~18:00
所在地・アクセス
所在地
大阪府大阪市北区中之島3-3-23
エリア
梅田
最寄駅
京阪中之島線 渡辺橋駅 徒歩1分
大阪メトロ四つ橋線 肥後橋駅 徒歩4分
大阪メトロ御堂筋線 淀屋橋駅 徒歩8分
大阪メトロ四つ橋線 肥後橋駅 徒歩4分
大阪メトロ御堂筋線 淀屋橋駅 徒歩8分
賃貸条件
賃料(坪単価)
相談
礼金
-
共益費(坪単価)
相談
償却
-
月額合計(坪単価)
相談
面積
471.36坪
(1,558.21㎡)
(1,558.21㎡)
敷金・保証金
相談
入居日
2026/10
更新料
-
契約形態
普通賃貸借契約
建物詳細
構造
SRC
土日エントランス
オープン
オープン
-
規模
地上35階地下2階
天井高
2,800mm以上
2,800mm以上
-
竣工
2009年03月
駐車場
○
設備
こだわり設備
個別空調
男女トイレ別
OAフロア
新耐震基準
エレベーター2基以上
その他の設備
大通り沿い
駐車場
エレベーター
大型・高層
ランドマーク
スタッフコメント
周辺環境やアクセスの利便性も魅力のオフィスです。レイアウトの自由度もあり、様々な業種に対応可能。条件のご相談や内見のご希望など、お気軽にお問い合わせください。
物件詳細
間取り図
contact
この物件について問い合わせる
お電話でのご相談も承ります
大阪・兵庫
06-6131-7871
営業時間 平日9:00~18:00
現在募集中のその他の区画
(募集中の総面積:2,412.85坪 / 7,976.35㎡)
※チェックボックスにチェックを入れると、複数の物件について一度にお問合せできます。
メールでのお問い合わせはこちら
お電話でのご相談も承ります
Neighborhood
条件の似ている物件
Recommend
同じエリアの人気物件
この物件について詳しく知りたい方は