物件番号:700242
南森町パークビル
1階
オフィス移転・事務所移転のご相談はStratectへ。居抜きオフィスやセットアップオフィスなど豊富な物件情報から、ご要望に合うオフィスをご提案します。
Swipe
月額合計
180,000円(@20,000円)
【税込:198,000円】
【税込:198,000円】
賃料
153,000円(@17,000円)
【税込:168,300円】
【税込:168,300円】
共益費
27,000円(@3,000円)
【税込:29,700円】
【税込:29,700円】
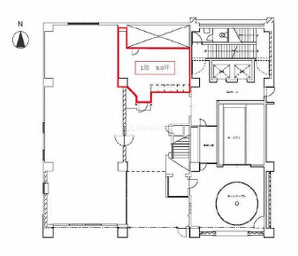
面積
9.00坪
(29.75㎡)
(29.75㎡)
入居日
即
この物件について
お問い合わせする
お問い合わせする
お電話でのご相談も
承ります
承ります
大阪・兵庫
06-6131-7871
営業時間 平日9:00~18:00
所在地・アクセス
所在地
大阪府大阪市北区西天満5-1-3
エリア
南森町
最寄駅
大阪メトロ堺筋線 南森町駅 徒歩3分
JR東西線 大阪天満宮駅 徒歩6分
JR東西線 大阪天満宮駅 徒歩6分
賃貸条件
賃料(坪単価)
153,000円(@17,000円)
【税込:168,300円】
【税込:168,300円】
礼金
-
共益費(坪単価)
27,000円(@3,000円)
【税込:29,700円】
【税込:29,700円】
償却
-
月額合計(坪単価)
180,000円(@20,000円)
【税込:198,000円】
【税込:198,000円】
面積
9.00坪
(29.75㎡)
(29.75㎡)
敷金・保証金
1,800,000円
入居日
即
更新料
-
契約形態
普通賃貸借契約
建物詳細
構造
SRC
土日エントランス
オープン
オープン
-
規模
地上9階地下1階
天井高
2,800mm以上
2,800mm以上
-
竣工
1978年10月
駐車場
○
設備
こだわり設備
個別空調
男女トイレ別
OAフロア
その他の設備
駐車場
エレベーター
1階限定
スタッフコメント
周辺環境やアクセスの利便性も魅力のオフィスです。レイアウトの自由度もあり、様々な業種に対応可能。条件のご相談や内見のご希望など、お気軽にお問い合わせください。
物件詳細
間取り図
contact
この物件について問い合わせる
お電話でのご相談も承ります
大阪・兵庫
06-6131-7871
営業時間 平日9:00~18:00
現在募集中のその他の区画
(募集中の総面積:53.70坪 / 177.52㎡)
※チェックボックスにチェックを入れると、複数の物件について一度にお問合せできます。
メールでのお問い合わせはこちら
お電話でのご相談も承ります
Neighborhood
条件の似ている物件
Recommend
同じエリアの人気物件
この物件について詳しく知りたい方は