Swipe
月額合計
112,240円(@8,000円)
【税込:123,464円】
【税込:123,464円】
賃料
112,240円(@8,000円)
【税込:123,464円】
【税込:123,464円】
共益費
相談
面積
14.03坪
(46.38㎡)
(46.38㎡)
入居日
2026/8
この物件について
お問い合わせする
お問い合わせする
お電話でのご相談も
承ります
承ります
大阪・兵庫
06-6131-7871
営業時間 平日9:00~18:00
所在地・アクセス
所在地
大阪府大阪市北区大淀南1-5-1
エリア
堂島・中之島
最寄駅
大阪環状線 福島駅 徒歩8分
阪神本線 福島駅 徒歩10分
阪神本線 福島駅 徒歩10分
賃貸条件
賃料(坪単価)
112,240円(@8,000円)
【税込:123,464円】
【税込:123,464円】
礼金
-
共益費(坪単価)
相談
償却
-
月額合計(坪単価)
112,240円(@8,000円)
【税込:123,464円】
【税込:123,464円】
面積
14.03坪
(46.38㎡)
(46.38㎡)
敷金・保証金
10ヶ月
入居日
2026/8
更新料
-
契約形態
普通賃貸借契約
建物詳細
構造
RC
土日エントランス
オープン
オープン
-
規模
地上7階
天井高
2,800mm以上
2,800mm以上
-
竣工
1973年02月
駐車場
-
設備
こだわり設備
個別空調
その他の設備
坪単価1万円以下
大通り沿い
エレベーター
物件詳細
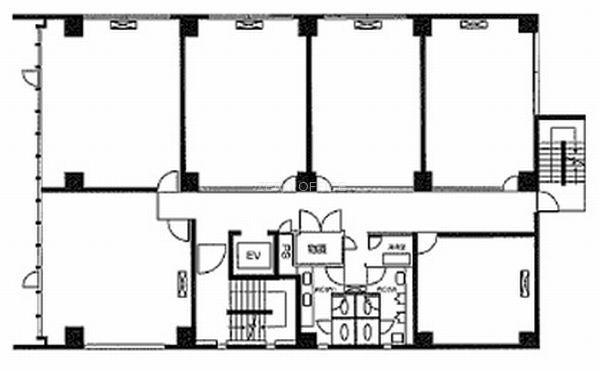
間取り図
contact
この物件について問い合わせる
お電話でのご相談も承ります
大阪・兵庫
06-6131-7871
営業時間 平日9:00~18:00
現在募集中のその他の区画
(募集中の総面積:14.03坪 / 46.38㎡)
※チェックボックスにチェックを入れると、複数の物件について一度にお問合せできます。
メールでのお問い合わせはこちら
お電話でのご相談も承ります
Neighborhood
条件の似ている物件
Recommend
同じエリアの人気物件
この物件について詳しく知りたい方は