Swipe
月額合計
556,020円(@18,000円)
【税込:611,622円】
【税込:611,622円】
賃料
463,350円(@15,000円)
【税込:509,685円】
【税込:509,685円】
共益費
92,670円(@3,000円)
【税込:101,937円】
【税込:101,937円】
面積
30.89坪
(102.12㎡)
(102.12㎡)
入居日
2026/06/15
この物件について
お問い合わせする
お問い合わせする
お電話でのご相談も
承ります
承ります
東京
03-6260-7395
営業時間 平日9:00~18:00
所在地・アクセス
所在地
東京都千代田区神田須田町1-3-1
エリア
秋葉原・神田・岩本町、 御茶ノ水・水道橋、 神保町・小川町・竹橋
最寄駅
東京メトロ丸ノ内線 淡路町駅 徒歩2分
JR山手線 秋葉原駅 徒歩5分
東京メトロ銀座線 神田駅 徒歩4分
東京メトロ千代田線 新御茶ノ水駅 徒歩4分
JR山手線 秋葉原駅 徒歩5分
東京メトロ銀座線 神田駅 徒歩4分
東京メトロ千代田線 新御茶ノ水駅 徒歩4分
賃貸条件
賃料(坪単価)
463,350円(@15,000円)
【税込:509,685円】
【税込:509,685円】
礼金
-
共益費(坪単価)
92,670円(@3,000円)
【税込:101,937円】
【税込:101,937円】
償却
-
月額合計(坪単価)
556,020円(@18,000円)
【税込:611,622円】
【税込:611,622円】
面積
30.89坪
(102.12㎡)
(102.12㎡)
敷金・保証金
相談
入居日
2026/06/15
更新料
-
契約形態
普通賃貸借契約
建物詳細
構造
鉄骨造
土日エントランス
オープン
オープン
-
規模
地上10階地下1階
天井高
2,800mm以上
2,800mm以上
-
竣工
1993年05月
駐車場
-
設備
こだわり設備
個別空調
男女トイレ別
OAフロア
新耐震基準
居抜き・セットアップ
その他の設備
エレベーター
物件詳細
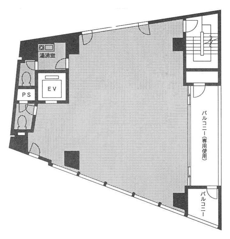
間取り図
contact
この物件について問い合わせる
お電話でのご相談も承ります
東京
03-6260-7395
営業時間 平日9:00~18:00
現在募集中のその他の区画
(募集中の総面積:124.55坪 / 411.73㎡)
※チェックボックスにチェックを入れると、複数の物件について一度にお問合せできます。
メールでのお問い合わせはこちら
お電話でのご相談も承ります
Neighborhood
条件の似ている物件
Recommend
同じエリアの人気物件
この物件について詳しく知りたい方は