物件番号:155052
リードシー西五反田
4階
品川区でオフィス移転を検討中の企業様へ。Stratectが居抜き・セットアップなど豊富な物件から最適なオフィスをご提案。物件探しから移転まで一括サポートします。
Swipe
月額合計
1,569,250円(@25,000円)
【税込:1,726,175円】
【税込:1,726,175円】
賃料
1,569,250円(@25,000円)
【税込:1,726,175円】
【税込:1,726,175円】
共益費
込
面積
62.77坪
(207.50㎡)
(207.50㎡)
入居日
即
この物件について
お問い合わせする
お問い合わせする
お電話でのご相談も
承ります
承ります
東京
03-6260-7395
営業時間 平日9:00~18:00
所在地・アクセス
所在地
東京都品川区西五反田3-12-14
エリア
五反田・目黒・大崎
最寄駅
東急目黒線 不動前駅 徒歩5分
JR山手線 五反田駅 徒歩12分
JR山手線 五反田駅 徒歩12分
賃貸条件
賃料(坪単価)
1,569,250円(@25,000円)
【税込:1,726,175円】
【税込:1,726,175円】
礼金
-
共益費(坪単価)
込
償却
-
月額合計(坪単価)
1,569,250円(@25,000円)
【税込:1,726,175円】
【税込:1,726,175円】
面積
62.77坪
(207.50㎡)
(207.50㎡)
敷金・保証金
6ヶ月
入居日
即
更新料
-
契約形態
普通賃貸借契約
建物詳細
構造
SRC
土日エントランス
オープン
オープン
-
規模
地上8階地下2階
天井高
2,800mm以上
2,800mm以上
-
竣工
1993年06月
駐車場
-
設備
こだわり設備
個別空調
居抜き・セットアップ
その他の設備
エレベーター
スタッフコメント
オフィス移転や開設をご検討の企業様におすすめの物件です。条件の相談やフリーレントのご相談、内見依頼などお気軽にお問い合わせください。
物件詳細
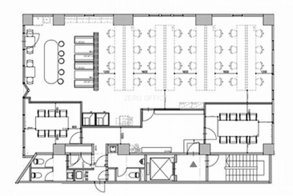
間取り図
contact
この物件について問い合わせる
お電話でのご相談も承ります
東京
03-6260-7395
営業時間 平日9:00~18:00
現在募集中のその他の区画
(募集中の総面積:125.54坪 / 415.00㎡)
※チェックボックスにチェックを入れると、複数の物件について一度にお問合せできます。
メールでのお問い合わせはこちら
お電話でのご相談も承ります
Neighborhood
条件の似ている物件
Recommend
同じエリアの人気物件
この物件について詳しく知りたい方は