Swipe
月額合計
相談
賃料
相談
共益費
相談
面積
125.65坪
(415.37㎡)
(415.37㎡)
入居日
即
この物件について
お問い合わせする
お問い合わせする
お電話でのご相談も
承ります
承ります
東京
03-6260-7395
営業時間 平日9:00~18:00
所在地・アクセス
所在地
東京都千代田区霞が関3-2-1
エリア
有楽町・霞が関・日比谷
最寄駅
東京メトロ銀座線 虎ノ門駅 徒歩1分
東京メトロ日比谷線 霞ケ関駅 徒歩2分
東京メトロ日比谷線 霞ケ関駅 徒歩2分
東京メトロ丸ノ内線 国会議事堂前駅 徒歩6分
東京メトロ日比谷線 霞ケ関駅 徒歩2分
東京メトロ日比谷線 霞ケ関駅 徒歩2分
東京メトロ丸ノ内線 国会議事堂前駅 徒歩6分
賃貸条件
賃料(坪単価)
相談
礼金
-
共益費(坪単価)
相談
償却
-
月額合計(坪単価)
相談
面積
125.65坪
(415.37㎡)
(415.37㎡)
敷金・保証金
相談
入居日
即
更新料
-
契約形態
普通賃貸借契約
建物詳細
構造
SRC
土日エントランス
オープン
オープン
-
規模
地上38階地下3階
天井高
2,800mm以上
2,800mm以上
-
竣工
2007年09月
駐車場
○
設備
こだわり設備
個別空調
男女トイレ別
OAフロア
新耐震基準
エレベーター2基以上
大型ビル分割
その他の設備
貸会議室
駐車場
環境配慮(SDGs)
免震・制振
BCP対応
大型・高層
ランドマーク
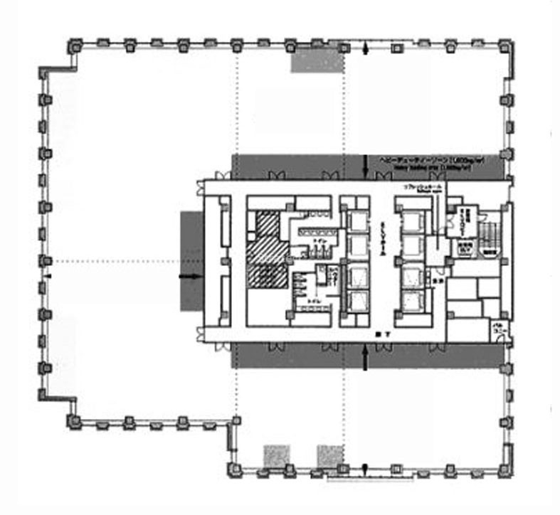
物件詳細
間取り図
contact
この物件について問い合わせる
お電話でのご相談も承ります
東京
03-6260-7395
営業時間 平日9:00~18:00
現在募集中のその他の区画
(募集中の総面積:1,065.56坪 / 3,522.51㎡)
※チェックボックスにチェックを入れると、複数の物件について一度にお問合せできます。
メールでのお問い合わせはこちら
お電話でのご相談も承ります
Neighborhood
条件の似ている物件
Recommend
同じエリアの人気物件
この物件について詳しく知りたい方は