Swipe
月額合計
1,382,700円(@33,000円)
【税込:1,520,970円】
【税込:1,520,970円】
賃料
1,382,700円(@33,000円)
【税込:1,520,970円】
【税込:1,520,970円】
共益費
込
面積
41.90坪
(138.51㎡)
(138.51㎡)
入居日
相談
この物件について
お問い合わせする
お問い合わせする
お電話でのご相談も
承ります
承ります
東京
03-6260-7395
営業時間 平日9:00~18:00
所在地・アクセス
所在地
東京都港区浜松町1-16-1
エリア
浜松町・芝公園・田町・三田
最寄駅
JR京浜東北線 浜松町駅 徒歩3分
都営大江戸線 大門駅 徒歩3分
都営浅草線 大門駅 徒歩3分
都営大江戸線 大門駅 徒歩3分
都営浅草線 大門駅 徒歩3分
賃貸条件
賃料(坪単価)
1,382,700円(@33,000円)
【税込:1,520,970円】
【税込:1,520,970円】
礼金
-
共益費(坪単価)
込
償却
-
月額合計(坪単価)
1,382,700円(@33,000円)
【税込:1,520,970円】
【税込:1,520,970円】
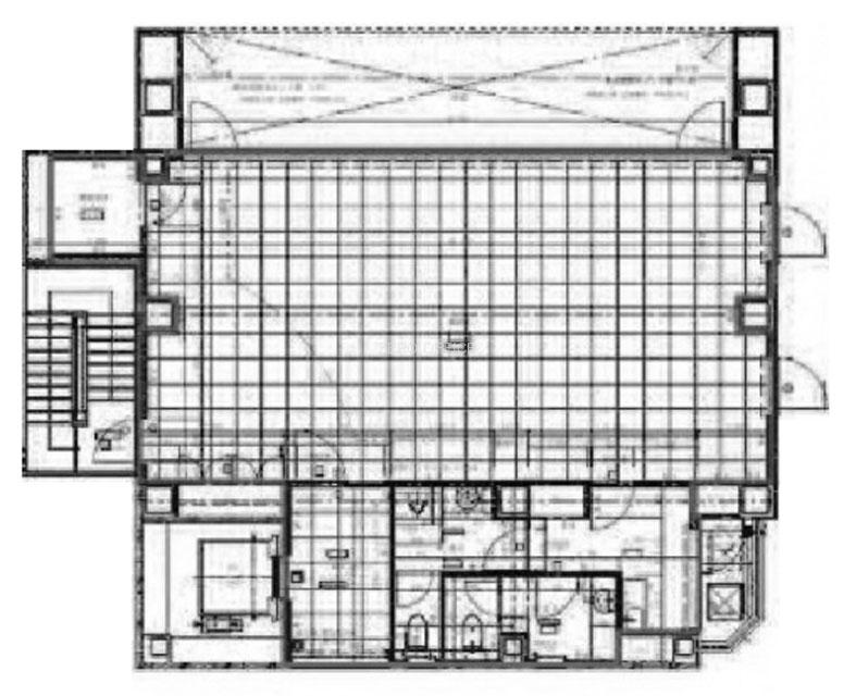
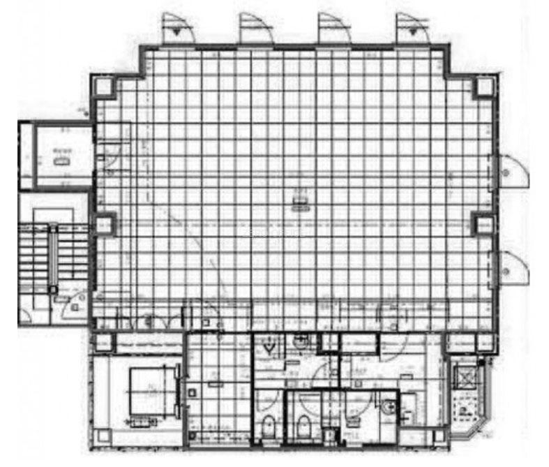
面積
41.90坪
(138.51㎡)
(138.51㎡)
敷金・保証金
8ヶ月
入居日
相談
更新料
-
契約形態
普通賃貸借契約
建物詳細
構造
鉄骨造
土日エントランス
オープン
オープン
-
規模
地上11階
天井高
2,800mm以上
2,800mm以上
-
竣工
2025年08月
駐車場
-
設備
こだわり設備
男女トイレ別
OAフロア
新耐震基準
居抜き・セットアップ
その他の設備
築浅(3年以内)
エレベーター
スタッフコメント
企業の成長を見据えたオフィス選びをサポート。レイアウトや条件交渉、入居後の運用まで見据えたご提案が可能です。まずはお気軽に条件相談・内見依頼ください。
物件詳細
間取り図
contact
この物件について問い合わせる
お電話でのご相談も承ります
東京
03-6260-7395
営業時間 平日9:00~18:00
現在募集中のその他の区画
(募集中の総面積:410.50坪 / 1,357.01㎡)
※チェックボックスにチェックを入れると、複数の物件について一度にお問合せできます。
メールでのお問い合わせはこちら
お電話でのご相談も承ります
Neighborhood
条件の似ている物件
Recommend
同じエリアの人気物件
この物件について詳しく知りたい方は