物件番号:154220
Ⅹ-BASE SHIBUYA
5階
渋谷区でオフィス移転を検討中の企業様へ。Stratectが居抜き・セットアップなど豊富な物件から最適なオフィスをご提案。物件探しから移転まで一括サポートします。
Swipe
月額合計
5,594,798円(@40,002円)
【税込:6,154,277円】
【税込:6,154,277円】
賃料
5,594,798円(@40,002円)
【税込:6,154,277円】
【税込:6,154,277円】
共益費
込
面積
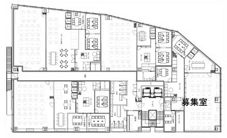
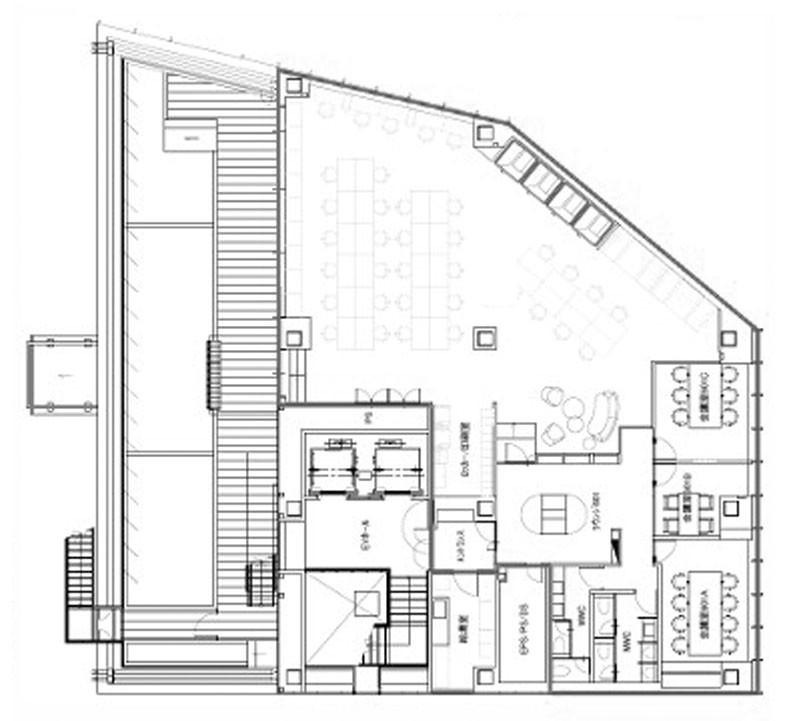
139.86坪
(462.35㎡)
(462.35㎡)
入居日
即
この物件について
お問い合わせする
お問い合わせする
お電話でのご相談も
承ります
承ります
東京
03-6260-7395
営業時間 平日9:00~18:00
所在地・アクセス
所在地
東京都渋谷区松濤2-15-13
エリア
渋谷
最寄駅
京王井の頭線 神泉駅 徒歩4分
JR山手線 渋谷駅 徒歩10分
JR山手線 渋谷駅 徒歩10分
賃貸条件
賃料(坪単価)
5,594,798円(@40,002円)
【税込:6,154,277円】
【税込:6,154,277円】
礼金
-
共益費(坪単価)
込
償却
-
月額合計(坪単価)
5,594,798円(@40,002円)
【税込:6,154,277円】
【税込:6,154,277円】
面積
139.86坪
(462.35㎡)
(462.35㎡)
敷金・保証金
6ヶ月
入居日
即
更新料
-
契約形態
定期借家契約
建物詳細
構造
鉄骨造
土日エントランス
オープン
オープン
-
規模
地上0階
天井高
2,800mm以上
2,800mm以上
-
竣工
2011年05月
駐車場
-
設備
こだわり設備
個別空調
OAフロア
新耐震基準
その他の設備
築浅(3年以内)
エレベーター
1フロア
物件詳細
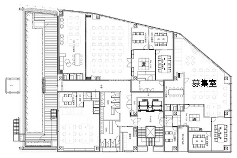
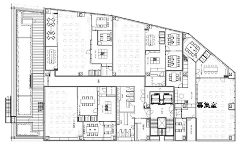
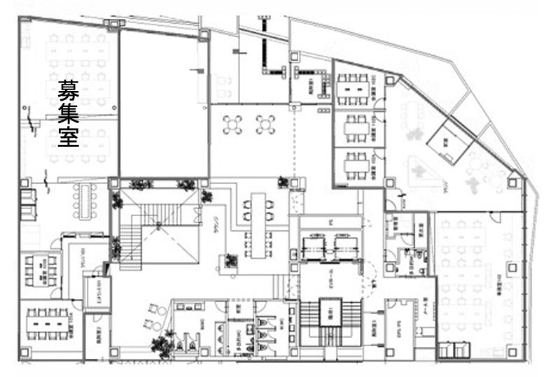
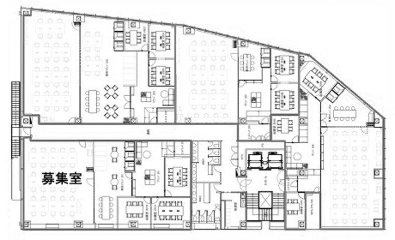
間取り図
contact
この物件について問い合わせる
お電話でのご相談も承ります
東京
03-6260-7395
営業時間 平日9:00~18:00
現在募集中のその他の区画
(募集中の総面積:1,022.03坪 / 3,378.59㎡)
※チェックボックスにチェックを入れると、複数の物件について一度にお問合せできます。
メールでのお問い合わせはこちら
お電話でのご相談も承ります
Neighborhood
条件の似ている物件
Recommend
同じエリアの人気物件
この物件について詳しく知りたい方は