物件番号:123274
ヒキタカ芝公園ビル
9階
港区でオフィスをお探しの方へ。新橋・浜松町・虎ノ門など人気ビジネスエリアの物件情報を豊富にご用意。ご要望に合う最適なオフィスをご提案します。
Swipe
月額合計
480,480円(@19,500円)
【税込:528,528円】
【税込:528,528円】
賃料
480,480円(@19,500円)
【税込:528,528円】
【税込:528,528円】
共益費
込
面積
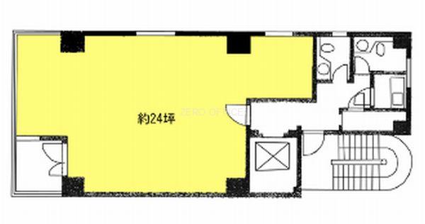
24.64坪
(81.45㎡)
(81.45㎡)
入居日
2026/3
この物件について
お問い合わせする
お問い合わせする
お電話でのご相談も
承ります
承ります
東京
03-6260-7395
営業時間 平日9:00~18:00
所在地・アクセス
所在地
東京都港区芝3-15-14
エリア
六本木・麻布・白金、 浜松町・芝公園・田町・三田
最寄駅
都営大江戸線 赤羽橋駅 徒歩3分
都営三田線 芝公園駅 徒歩6分
東京メトロ南北線 麻布十番駅 徒歩11分
都営三田線 芝公園駅 徒歩6分
東京メトロ南北線 麻布十番駅 徒歩11分
賃貸条件
賃料(坪単価)
480,480円(@19,500円)
【税込:528,528円】
【税込:528,528円】
礼金
-
共益費(坪単価)
込
償却
1ヶ月
月額合計(坪単価)
480,480円(@19,500円)
【税込:528,528円】
【税込:528,528円】
面積
24.64坪
(81.45㎡)
(81.45㎡)
敷金・保証金
4ヶ月
入居日
2026/3
更新料
1ヶ月
契約形態
普通賃貸借契約
建物詳細
構造
SRC
土日エントランス
オープン
オープン
-
規模
地上9階地下1階
天井高
2,800mm以上
2,800mm以上
-
竣工
1988年12月
駐車場
-
設備
こだわり設備
個別空調
男女トイレ別
新耐震基準
その他の設備
エレベーター
スタッフコメント
企業の成長を見据えたオフィス選びをサポート。レイアウトや条件交渉、入居後の運用まで見据えたご提案が可能です。まずはお気軽に条件相談・内見依頼ください。
物件詳細
間取り図
contact
この物件について問い合わせる
お電話でのご相談も承ります
東京
03-6260-7395
営業時間 平日9:00~18:00
現在募集中のその他の区画
(募集中の総面積:24.64坪 / 81.45㎡)
※チェックボックスにチェックを入れると、複数の物件について一度にお問合せできます。
メールでのお問い合わせはこちら
お電話でのご相談も承ります
Neighborhood
条件の似ている物件
Recommend
同じエリアの人気物件
この物件について詳しく知りたい方は