物件番号:10373
SUGIURA GINZA
3階
中央区でオフィスをお探しの方へ。日本橋・京橋・銀座など主要ビジネスエリアの物件情報を豊富にご用意。ご要望に合う最適なオフィスをご提案します。
Swipe
月額合計
1,872,750円(@33,000円)
【税込:2,060,025円】
【税込:2,060,025円】
賃料
1,872,750円(@33,000円)
【税込:2,060,025円】
【税込:2,060,025円】
共益費
込
面積
56.75坪
(187.60㎡)
(187.60㎡)
入居日
2025/07/01
この物件について
お問い合わせする
お問い合わせする
お電話でのご相談も
承ります
承ります
東京
03-6260-7395
営業時間 平日9:00~18:00
所在地・アクセス
所在地
東京都中央区銀座1-28-16
エリア
銀座・東銀座
最寄駅
東京メトロ有楽町線 新富町駅 徒歩2分
都営浅草線 宝町駅 徒歩4分
東京メトロ日比谷線 東銀座駅 徒歩6分
都営浅草線 宝町駅 徒歩4分
東京メトロ日比谷線 東銀座駅 徒歩6分
賃貸条件
賃料(坪単価)
1,872,750円(@33,000円)
【税込:2,060,025円】
【税込:2,060,025円】
礼金
-
共益費(坪単価)
込
償却
1ヶ月
月額合計(坪単価)
1,872,750円(@33,000円)
【税込:2,060,025円】
【税込:2,060,025円】
面積
56.75坪
(187.60㎡)
(187.60㎡)
敷金・保証金
10ヶ月
入居日
2025/07/01
更新料
1ヶ月
契約形態
普通賃貸借契約
建物詳細
構造
RC
土日エントランス
オープン
オープン
-
規模
地上6階地下1階
天井高
2,800mm以上
2,800mm以上
-
竣工
2025年05月
駐車場
-
設備
こだわり設備
個別空調
新耐震基準
エレベーター2基以上
その他の設備
築浅(3年以内)
エレベーター
スタッフコメント
オフィス移転や開設をご検討の企業様におすすめの物件です。条件の相談やフリーレントのご相談、内見依頼などお気軽にお問い合わせください。
物件詳細
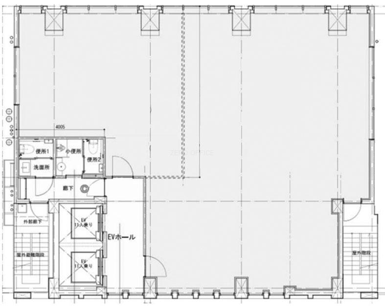
間取り図
contact
この物件について問い合わせる
お電話でのご相談も承ります
東京
03-6260-7395
営業時間 平日9:00~18:00
現在募集中のその他の区画
(募集中の総面積:266.92坪 / 882.38㎡)
※チェックボックスにチェックを入れると、複数の物件について一度にお問合せできます。
メールでのお問い合わせはこちら
お電話でのご相談も承ります
Neighborhood
条件の似ている物件
Recommend
同じエリアの人気物件
この物件について詳しく知りたい方は