Swipe
月額合計
相談
賃料
相談
共益費
相談
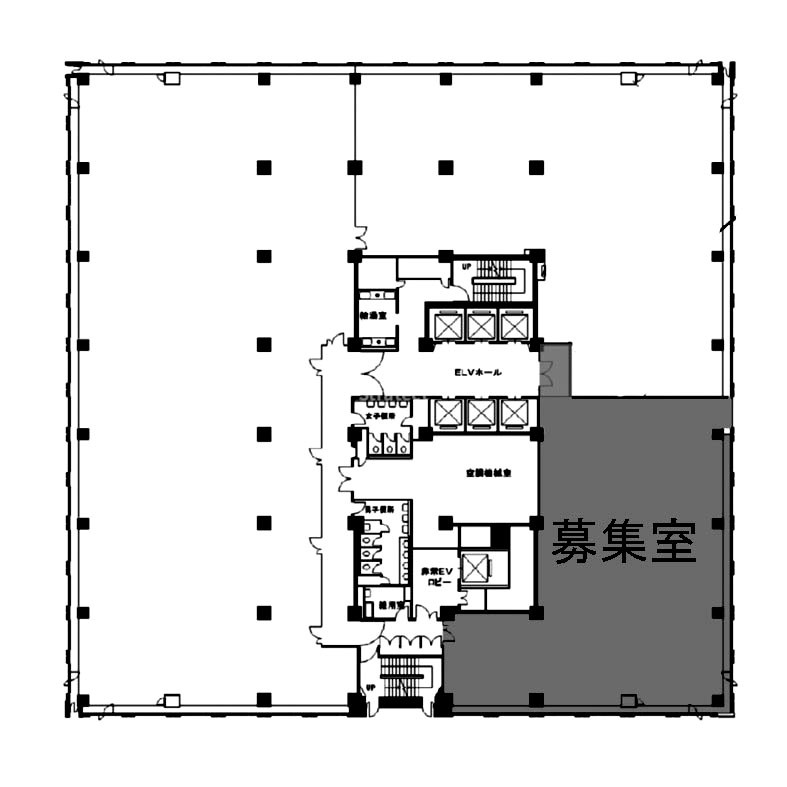
面積
33.69坪
(111.37㎡)
(111.37㎡)
入居日
即
この物件について
お問い合わせする
お問い合わせする
お電話でのご相談も
承ります
承ります
東京
03-6260-7395
営業時間 平日9:00~18:00
所在地・アクセス
所在地
東京都千代田区丸の内3-4-2
エリア
丸の内・大手町
最寄駅
JR山手線 有楽町駅 徒歩2分
JR京浜東北線 有楽町駅 徒歩2分
JR京浜東北線 有楽町駅 徒歩2分
賃貸条件
賃料(坪単価)
相談
礼金
-
共益費(坪単価)
相談
償却
-
月額合計(坪単価)
相談
面積
33.69坪
(111.37㎡)
(111.37㎡)
敷金・保証金
相談
入居日
即
更新料
-
契約形態
定期借家契約
建物詳細
構造
SRC
土日エントランス
オープン
オープン
-
規模
地上11階地下2階
天井高
2,800mm以上
2,800mm以上
-
竣工
1981年07月
駐車場
○
設備
こだわり設備
個別空調
男女トイレ別
OAフロア
エレベーター2基以上
大型ビル分割
その他の設備
駐車場
エレベーター
大型・高層
ランドマーク
物件詳細
間取り図
contact
この物件について問い合わせる
お電話でのご相談も承ります
東京
03-6260-7395
営業時間 平日9:00~18:00
現在募集中のその他の区画
(募集中の総面積:152.52坪 / 504.20㎡)
※チェックボックスにチェックを入れると、複数の物件について一度にお問合せできます。
メールでのお問い合わせはこちら
お電話でのご相談も承ります
Neighborhood
条件の似ている物件
Recommend
同じエリアの人気物件
この物件について詳しく知りたい方は