物件番号:149845
藤和護国寺コープ・冨士ビル
1階
文京区でオフィス移転を検討中の企業様へ。Stratectが居抜き・セットアップなど豊富な物件から最適なオフィスをご提案。物件探しから移転まで一括サポートします。
Swipe
月額合計
590,000円(@16,138円)
【税込:649,000円】
【税込:649,000円】
賃料
540,000円(@14,770円)
【税込:594,000円】
【税込:594,000円】
共益費
50,000円(@1,368円)
【税込:55,000円】
【税込:55,000円】
面積
36.56坪
(120.86㎡)
(120.86㎡)
入居日
即
この物件について
お問い合わせする
お問い合わせする
お電話でのご相談も
承ります
承ります
東京
03-6260-7395
営業時間 平日9:00~18:00
所在地・アクセス
所在地
東京都文京区大塚6-37-5
エリア
水道橋・御茶ノ水・本郷、 本駒込・千石・白山
最寄駅
東京メトロ有楽町線 東池袋駅 徒歩4分
賃貸条件
賃料(坪単価)
540,000円(@14,770円)
【税込:594,000円】
【税込:594,000円】
礼金
-
共益費(坪単価)
50,000円(@1,368円)
【税込:55,000円】
【税込:55,000円】
償却
20%
月額合計(坪単価)
590,000円(@16,138円)
【税込:649,000円】
【税込:649,000円】
面積
36.56坪
(120.86㎡)
(120.86㎡)
敷金・保証金
4ヶ月
入居日
即
更新料
1ヶ月
契約形態
定期借家契約
建物詳細
構造
その他
土日エントランス
オープン
オープン
-
規模
地上8階
天井高
2,800mm以上
2,800mm以上
-
竣工
1979年03月
駐車場
-
設備
こだわり設備
個別空調
スタッフコメント
企業の成長を見据えたオフィス選びをサポート。レイアウトや条件交渉、入居後の運用まで見据えたご提案が可能です。まずはお気軽に条件相談・内見依頼ください。
物件詳細
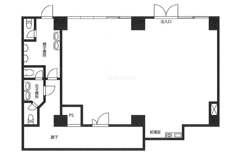
間取り図
contact
この物件について問い合わせる
お電話でのご相談も承ります
東京
03-6260-7395
営業時間 平日9:00~18:00
現在募集中のその他の区画
(募集中の総面積:36.56坪 / 120.86㎡)
※チェックボックスにチェックを入れると、複数の物件について一度にお問合せできます。
メールでのお問い合わせはこちら
お電話でのご相談も承ります
Neighborhood
条件の似ている物件
Recommend
同じエリアの人気物件
この物件について詳しく知りたい方は