物件番号:146083
VORT新富町
3階
中央区でオフィスをお探しの方へ。日本橋・京橋・銀座など主要ビジネスエリアの物件情報を豊富にご用意。ご要望に合う最適なオフィスをご提案します。
Swipe
月額合計
1,239,859円(@13,487円)
【税込:1,363,844円】
【税込:1,363,844円】
賃料
1,239,859円(@13,487円)
【税込:1,363,844円】
【税込:1,363,844円】
共益費
込
面積
91.93坪(303.90㎡)
入居日
2026/02/01
この物件について
お問い合わせする
お問い合わせする
お電話でのご相談も
承ります
承ります
東京
03-6260-7395
営業時間 平日9:00~18:00
所在地・アクセス
所在地
東京都中央区湊3-5-10
エリア
茅場町・八丁堀・築地
最寄駅
東京メトロ日比谷線 築地駅 徒歩6分
東京メトロ有楽町線 新富町駅 徒歩3分
東京メトロ有楽町線 新富町駅 徒歩3分
賃貸条件
賃料(坪単価)
1,239,859円(@13,487円)
【税込:1,363,844円】
【税込:1,363,844円】
礼金
1ヶ月
共益費(坪単価)
込
償却
-
月額合計(坪単価)
1,239,859円(@13,487円)
【税込:1,363,844円】
【税込:1,363,844円】
面積
91.93坪(303.90㎡)
敷金・保証金
5ヶ月
入居日
2026/02/01
更新料
1ヶ月
契約形態
普通賃貸借契約
建物詳細
構造
鉄骨造
土日エントランス
オープン
オープン
-
規模
地上8階
天井高
2,800mm以上
2,800mm以上
-
竣工
1990年03月
駐車場
-
設備
こだわり設備
個別空調
男女トイレ別
OAフロア
新耐震基準
エレベーター2基以上
その他の設備
エレベーター
1フロア
スタッフコメント
オフィス移転や開設をご検討の企業様におすすめの物件です。条件の相談やフリーレントのご相談、内見依頼などお気軽にお問い合わせください。
物件詳細
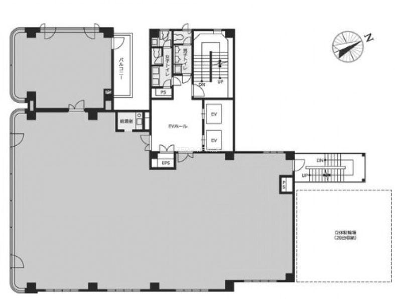
間取り図
contact
この物件について問い合わせる
お電話でのご相談も承ります
東京
03-6260-7395
営業時間 平日9:00~18:00
現在募集中のその他の区画
(募集中の総面積:91.93坪 / 303.90㎡)
※チェックボックスにチェックを入れると、複数の物件について一度にお問合せできます。
メールでのお問い合わせはこちら
お電話でのご相談も承ります
Neighborhood
条件の似ている物件
Recommend
同じエリアの人気物件
この物件について詳しく知りたい方は