Swipe
月額合計
相談
賃料
相談
共益費
込
面積
113.12坪
(373.95㎡)
(373.95㎡)
入居日
即
この物件について
お問い合わせする
お問い合わせする
お電話でのご相談も
承ります
承ります
東京
03-6260-7395
営業時間 平日9:00~18:00
所在地・アクセス
所在地
東京都中央区日本橋馬喰町1-11-10
エリア
小伝馬町・人形町・水天宮前
最寄駅
東京メトロ日比谷線 小伝馬町駅 徒歩8分
都営浅草線 東日本橋駅 徒歩4分
都営浅草線 浅草橋駅 徒歩5分
都営新宿線 馬喰横山駅 徒歩4分
都営浅草線 東日本橋駅 徒歩4分
都営浅草線 浅草橋駅 徒歩5分
都営新宿線 馬喰横山駅 徒歩4分
賃貸条件
賃料(坪単価)
相談
礼金
-
共益費(坪単価)
込
償却
-
月額合計(坪単価)
相談
面積
113.12坪
(373.95㎡)
(373.95㎡)
敷金・保証金
12ヶ月
入居日
即
更新料
-
契約形態
定期借家契約
建物詳細
構造
鉄骨造
土日エントランス
オープン
オープン
-
規模
地上11階
天井高
2,800mm以上
2,800mm以上
-
竣工
2023年04月
駐車場
-
設備
こだわり設備
個別空調
男女トイレ別
OAフロア
新耐震基準
エレベーター2基以上
その他の設備
築浅(3年以内)
エレベーター
1フロア
物件詳細
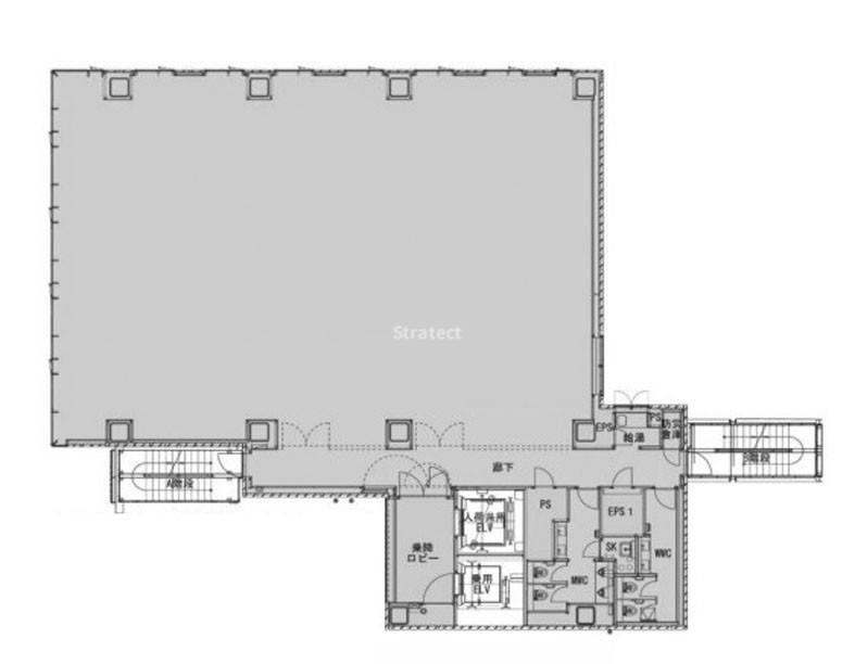
間取り図
contact
この物件について問い合わせる
お電話でのご相談も承ります
東京
03-6260-7395
営業時間 平日9:00~18:00
現在募集中のその他の区画
(募集中の総面積:226.24坪 / 747.90㎡)
※チェックボックスにチェックを入れると、複数の物件について一度にお問合せできます。
メールでのお問い合わせはこちら
お電話でのご相談も承ります
Neighborhood
条件の似ている物件
Recommend
同じエリアの人気物件
この物件について詳しく知りたい方は