物件番号:144129
コエル渋谷公園通り
8階
渋谷区でオフィス移転を検討中の企業様へ。Stratectが居抜き・セットアップなど豊富な物件から最適なオフィスをご提案。物件探しから移転まで一括サポートします。
Swipe
月額合計
2,182,250円(@43,000円)
【税込:2,400,475円】
【税込:2,400,475円】
賃料
2,182,250円(@43,000円)
【税込:2,400,475円】
【税込:2,400,475円】
共益費
込
面積
50.75坪
(167.77㎡)
(167.77㎡)
入居日
相談
この物件について
お問い合わせする
お問い合わせする
お電話でのご相談も
承ります
承ります
東京
03-6260-7395
営業時間 平日9:00~18:00
所在地・アクセス
所在地
東京都渋谷区神南1-20-8
エリア
渋谷
最寄駅
東京メトロ銀座線 表参道駅 徒歩5分
JR山手線 渋谷駅 徒歩5分
東急東横線 渋谷駅 徒歩5分
JR山手線 渋谷駅 徒歩5分
東急東横線 渋谷駅 徒歩5分
賃貸条件
賃料(坪単価)
2,182,250円(@43,000円)
【税込:2,400,475円】
【税込:2,400,475円】
礼金
-
共益費(坪単価)
込
償却
-
月額合計(坪単価)
2,182,250円(@43,000円)
【税込:2,400,475円】
【税込:2,400,475円】
面積
50.75坪
(167.77㎡)
(167.77㎡)
敷金・保証金
相談
入居日
相談
更新料
-
契約形態
普通賃貸借契約
建物詳細
構造
SRC
土日エントランス
オープン
オープン
-
規模
地上9階地下1階
天井高
2,800mm以上
2,800mm以上
-
竣工
2024年04月
駐車場
-
設備
こだわり設備
個別空調
OAフロア
新耐震基準
その他の設備
築浅(3年以内)
エレベーター
1フロア
物件詳細
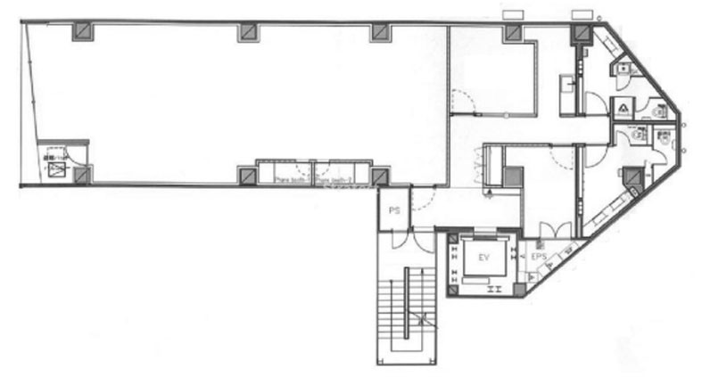
間取り図
contact
この物件について問い合わせる
お電話でのご相談も承ります
東京
03-6260-7395
営業時間 平日9:00~18:00
現在募集中のその他の区画
(募集中の総面積:50.75坪 / 167.77㎡)
※チェックボックスにチェックを入れると、複数の物件について一度にお問合せできます。
メールでのお問い合わせはこちら
お電話でのご相談も承ります
Neighborhood
条件の似ている物件
Recommend
同じエリアの人気物件
この物件について詳しく知りたい方は